LOADING

6034 Garraway Place Peachland, British Columbia V0H 1X4

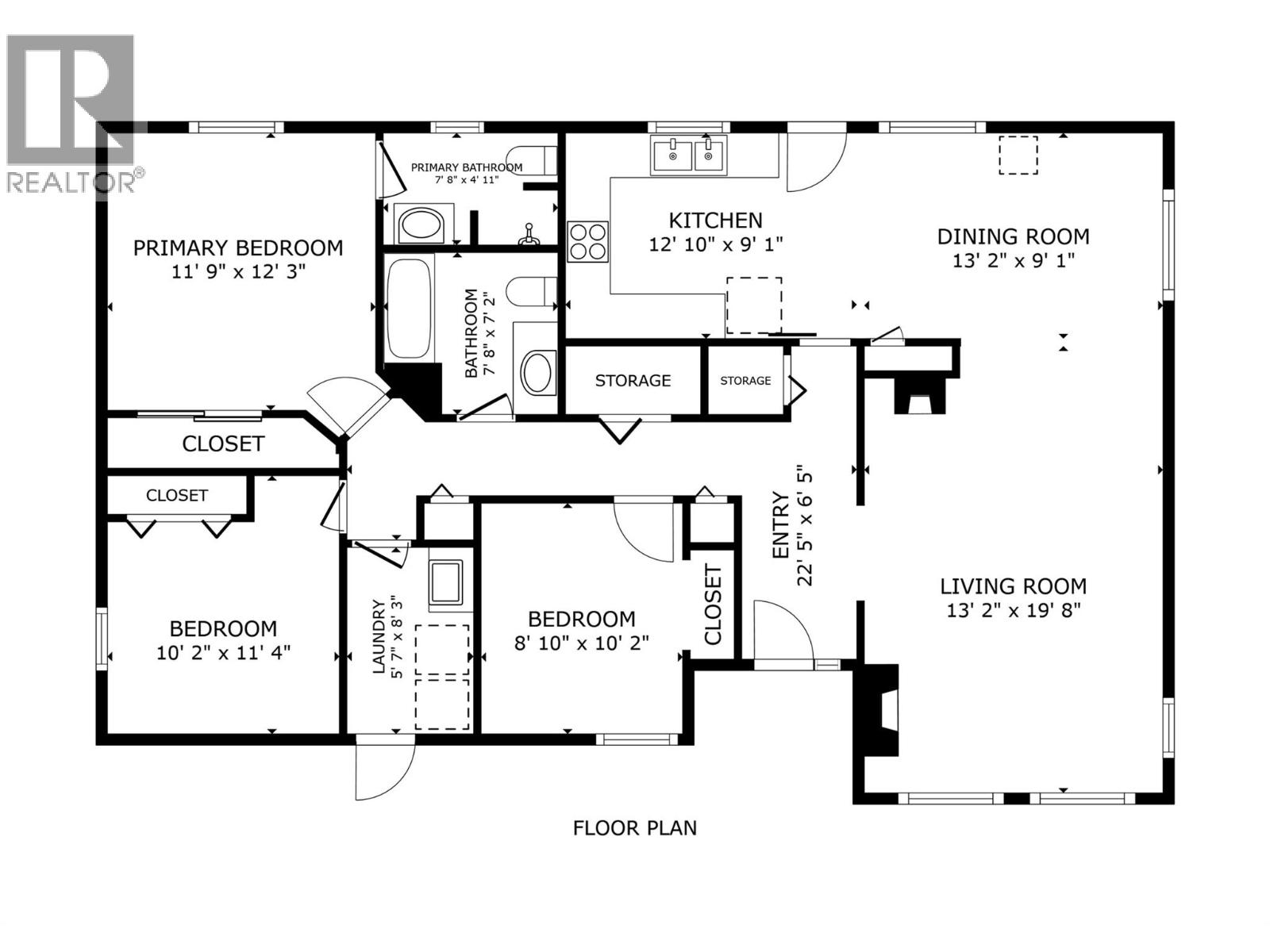
3 Bedroom 2 Bathroom 1283 sqft
Ranch Fireplace Forced Air

$690,000

Attention first-time home buyers, downsizers, or investors - welcome to 6034 Garraway Place in beautiful Peachland! This no-stair rancher in a quiet cul-de-sac, close to parks has great RV parking on a flat corner lot! Large windows fill the home with natural light. Open concept living with gas fireplace, a dining area, and the kitchen facing the backyard views. Down the hall you'll find 3 comfortable bedrooms, two baths and a convenient laundry room with access from the garage. You'll find the new-style light/fan combo in the dining room and bedrooms very cool! The hot water tank was replaced 3 years ago, and the furnace is 12 years old. Fully fenced backyard (bring the pets) with a lovely semi-enclosed patio, nice rock wall, and a couple of fruit trees as well as two sheds that will stay with the property. This home is in a great neighbourhood, steps to Turner Park and Sanderson off-leash dog park. Well-maintained and ready for the next owners who want to call this place home - just minutes from the beautiful lakefront boardwalk that Peachland is famous for! (id:36541)

Property Details

MLS® Number 10380391
Property Type Single Family
Neigbourhood Peachland
Parking Space Total 2

Building

Bathroom Total 2
Bedrooms Total 3
Architectural Style Ranch
Constructed Date 1992
Construction Style Attachment Detached
Fireplace Fuel Gas
Fireplace Present Yes
Fireplace Total 1
Fireplace Type Unknown
Flooring Type Laminate, Tile
Heating Type Forced Air
Roof Material Asphalt Shingle
Roof Style Unknown
Stories Total 1
Size Interior 1283 Sqft
Type House
Utility Water Municipal Water

Parking

Additional Parking
Attached Garage 2
R V 2

Land

Acreage No
Fence Type Fence
Sewer Septic Tank
Size Irregular 0.21
Size Total 0.21 Ac|under 1 Acre
Size Total Text 0.21 Ac|under 1 Acre

Rooms

Level Type Dimensions
Main Level Full Bathroom 7'8'' x 7'2''
Main Level Full Ensuite Bathroom 7'8'' x 4'11''
Main Level Bedroom 9'8'' x 10'
Main Level Bedroom 8'7'' x 10'0''
Main Level Primary Bedroom 11'11'' x 12'3''
Main Level Kitchen 26'4'' x 8'9''
Main Level Living Room 18'7'' x 13'0''

https://www.realtor.ca/real-estate/29533880/6034-garraway-place-peachland-peachland

Interested?

Contact us for more information


Generating Captcha

Century 21 Assurance Realty Ltd
251 Harvey Ave
Kelowna, British Columbia V1Y 6C2

(250) 869-0101
https://assurancerealty.c21.ca/

Century 21 Assurance Realty Ltd
251 Harvey Ave
Kelowna, British Columbia V1Y 6C2

(250) 869-0101
https://assurancerealty.c21.ca/

Your Favourites

 

No Favourites Found