Maintenance,
$180 MonthlyFANTASTIC FAMILY HOME in the highly desirable Country Rhodes community in Ellison! This well-maintained 4-bedroom, 3 full-bathroom home offers a great layout and is ideally located in the upper portion of the neighbourhood on a quiet no-thru street. The bright kitchen features ample cabinetry and counter space, a large walk-in pantry, and stainless steel appliances including an induction range. French doors lead to the back patio and yard with beautiful views of the privately owned ALR hillside providing an incredible space for entertaining. A separate dining room opens to the inviting living room with a cozy gas fireplace and charming barn door detail. The main floor also includes a spacious primary bedroom with a 4-piece ensuite and walk-in closet, plus two additional bedrooms and another full 4-piece bathroom. Downstairs offers a large family room, generous fourth bedroom, full 3-piece bath with glass shower, and a huge laundry room with closet and window that could convert to a fifth bedroom. Enjoy the large, flat, fully fenced and irrigated yard, OVERSIZED DOUBLE GARAGE, and ample parking. Roof replaced in 2023 and furnace replaced in 2022. Low $180/month strata includes park, playground, hall, pool, water, garbage, snow removal, and RV storage. Close to schools, shopping, UBCO, airport and more. 2 Pets welcome with no size restrictions! (id:36541)
| MLS® Number | 10376235 |
| Property Type | Single Family |
| Neigbourhood | Ellison |
| Community Name | Country Rhodes |
| Amenities Near By | Golf Nearby, Airport, Park, Schools, Shopping |
| Community Features | Family Oriented, Pet Restrictions, Pets Allowed With Restrictions |
| Features | Private Setting, Irregular Lot Size |
| Parking Space Total | 5 |
| Pool Type | Inground Pool, Outdoor Pool, Pool |
| Structure | Clubhouse, Playground |
| View Type | Mountain View, Valley View, View (panoramic) |
| Bathroom Total | 3 |
| Bedrooms Total | 4 |
| Amenities | Clubhouse |
| Appliances | Refrigerator, Dishwasher, Dryer, Range - Electric, Washer |
| Architectural Style | Ranch |
| Basement Type | Full |
| Constructed Date | 1996 |
| Construction Style Attachment | Detached |
| Cooling Type | Central Air Conditioning |
| Exterior Finish | Vinyl Siding |
| Fire Protection | Smoke Detector Only |
| Fireplace Fuel | Gas |
| Fireplace Present | Yes |
| Fireplace Total | 1 |
| Fireplace Type | Unknown |
| Flooring Type | Carpeted, Hardwood, Tile |
| Heating Type | Forced Air, See Remarks |
| Roof Material | Asphalt Shingle |
| Roof Style | Unknown |
| Stories Total | 1 |
| Size Interior | 2336 Sqft |
| Type | House |
| Utility Water | Municipal Water |
| Additional Parking | |
| Attached Garage | 2 |
| Access Type | Easy Access |
| Acreage | No |
| Fence Type | Fence |
| Land Amenities | Golf Nearby, Airport, Park, Schools, Shopping |
| Landscape Features | Underground Sprinkler |
| Sewer | Municipal Sewage System |
| Size Frontage | 50 Ft |
| Size Irregular | 0.15 |
| Size Total | 0.15 Ac|under 1 Acre |
| Size Total Text | 0.15 Ac|under 1 Acre |
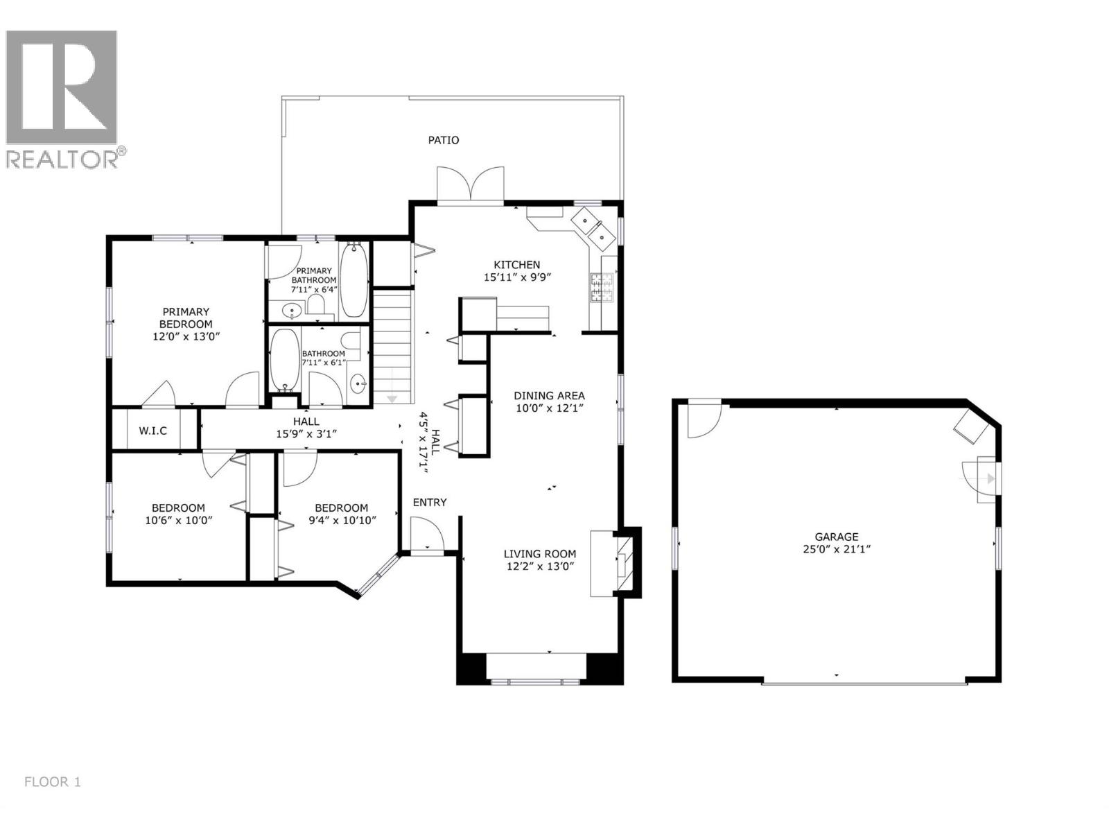
| Level | Type | Length | Width | Dimensions |
|---|---|---|---|---|
| Basement | Laundry Room | 13'8'' x 12'9'' | ||
| Basement | 3pc Bathroom | 10'9'' x 6'9'' | ||
| Basement | Bedroom | 13'8'' x 12'9'' | ||
| Basement | Family Room | 26'1'' x 15'0'' | ||
| Main Level | Full Bathroom | 7'11'' x 6'1'' | ||
| Main Level | Bedroom | 10'10'' x 9'4'' | ||
| Main Level | Bedroom | 10'6'' x 10'0'' | ||
| Main Level | 3pc Ensuite Bath | 7'1'' x 6'4'' | ||
| Main Level | Primary Bedroom | 13'0'' x 12'0'' | ||
| Main Level | Kitchen | 15'11'' x 9'9'' | ||
| Main Level | Dining Room | 12'1'' x 10'0'' | ||
| Main Level | Living Room | 13'0'' x 12'2'' |
https://www.realtor.ca/real-estate/29384522/4450-postill-drive-unit-9-kelowna-ellison
Contact us for more information
(250) 869-0101
https://assurancerealty.c21.ca/