4 Bedroom
3 Bathroom
2481 sqft
Other
Fireplace
Central Air Conditioning
Forced Air, See Remarks
$829,000
Brand New Duplex offers Modern Living in a Prime Location! Welcome to Turtle Mountain’s newest community – Tassie Creek Estates! Be the first to call this stunning new duplex home. Currently under construction, this thoughtfully designed residence combines contemporary style with functional living. Offering 4 spacious bedrooms, 2.5 baths, & an open-concept main floor, this home is ideal for families, professionals, or investors seeking a low-maintenance lifestyle. Perched at the top of Turtle Mountain, it offers 2,400+ sq.ft. of modern living space with sweeping views of the city, valley, & Okanagan Lake. Inside, you’ll find 4 bedrooms, an office & 2.5 baths. The primary suite is upstairs with a walk-in closet & ensuite featuring a walk-in shower & dual sinks. Convenience is built in with laundry on the upper level—no more hauling loads up & down stairs! The open concept main floor is designed for both comfort & entertaining. The kitchen boasts a center island & pantry, seamlessly flowing into the dining room, which opens onto the front deck with incredible views. The living room features an electric fireplace, while the back sun deck offers a perfect retreat at the end of the day.A garage with workshop space completes this home, providing room for both parking & projects. Experience the best of modern design & Okanagan lifestyle in this brand-new Tassie Creek Estates duplex—move in as soon as construction is complete which is estimated for January 31, 2026. Price is plus GST (id:36541)
Property Details
|
MLS® Number
|
10360643 |
|
Property Type
|
Single Family |
|
Neigbourhood
|
Bella Vista |
|
Amenities Near By
|
Golf Nearby, Public Transit, Airport, Park, Recreation, Schools, Shopping, Ski Area |
|
Community Features
|
Family Oriented, Rentals Allowed |
|
Features
|
Central Island, Balcony |
|
Parking Space Total
|
2 |
|
View Type
|
City View, Lake View, Mountain View, Valley View |
Building
|
Bathroom Total
|
3 |
|
Bedrooms Total
|
4 |
|
Architectural Style
|
Other |
|
Constructed Date
|
2025 |
|
Construction Style Attachment
|
Semi-detached |
|
Cooling Type
|
Central Air Conditioning |
|
Exterior Finish
|
Aluminum, Stucco |
|
Fire Protection
|
Controlled Entry, Smoke Detector Only |
|
Fireplace Present
|
Yes |
|
Fireplace Total
|
1 |
|
Fireplace Type
|
Insert |
|
Flooring Type
|
Carpeted, Tile, Vinyl |
|
Half Bath Total
|
1 |
|
Heating Type
|
Forced Air, See Remarks |
|
Roof Material
|
Asphalt Shingle |
|
Roof Style
|
Unknown |
|
Stories Total
|
1 |
|
Size Interior
|
2481 Sqft |
|
Type
|
Duplex |
|
Utility Water
|
Municipal Water |
Parking
Land
|
Access Type
|
Easy Access |
|
Acreage
|
No |
|
Land Amenities
|
Golf Nearby, Public Transit, Airport, Park, Recreation, Schools, Shopping, Ski Area |
|
Sewer
|
Municipal Sewage System |
|
Size Frontage
|
35 Ft |
|
Size Irregular
|
0.09 |
|
Size Total
|
0.09 Ac|under 1 Acre |
|
Size Total Text
|
0.09 Ac|under 1 Acre |
Rooms
| Level |
Type |
Length |
Width |
Dimensions |
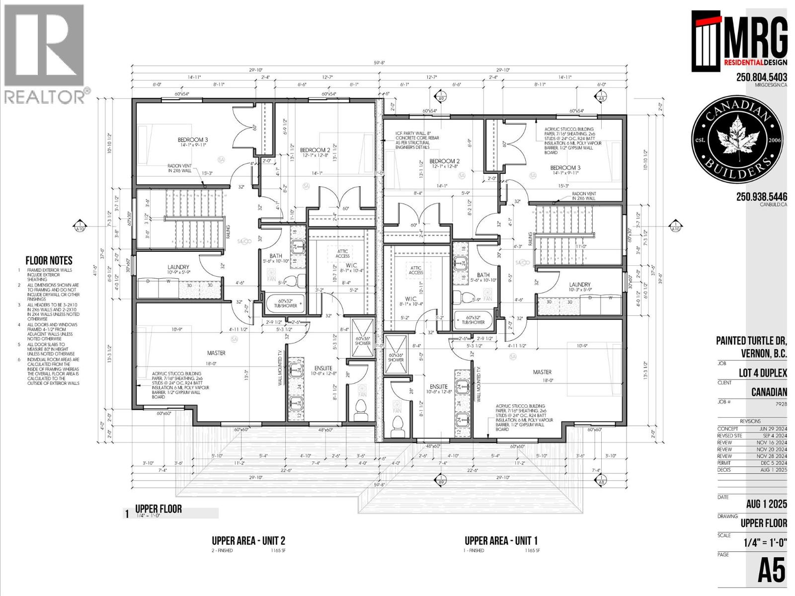
|
Second Level |
Bedroom |
|
|
14'1'' x 9'11'' |
|
Second Level |
Bedroom |
|
|
12'8'' x 12'1'' |
|
Second Level |
4pc Bathroom |
|
|
10'0'' x 5'6'' |
|
Second Level |
Laundry Room |
|
|
10'3'' x 5'9'' |
|
Second Level |
Other |
|
|
10'4'' x 8'1'' |
|
Second Level |
4pc Ensuite Bath |
|
|
12'8'' x 10'6'' |
|
Second Level |
Primary Bedroom |
|
|
18'0'' x 13'3'' |
|
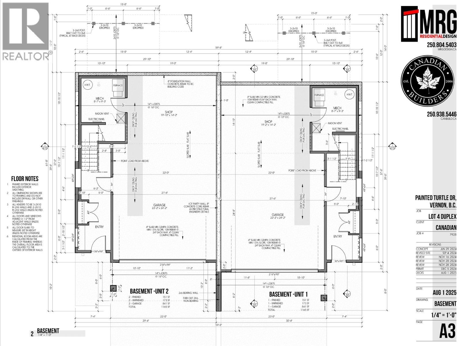
Basement |
Other |
|
|
24'0'' x 22'0'' |
|
Basement |
Other |
|
|
19'2'' x 14'2'' |
|
Basement |
Other |
|
|
9'3'' x 8'7'' |
|
Basement |
Foyer |
|
|
11'0'' x 7'10'' |
|
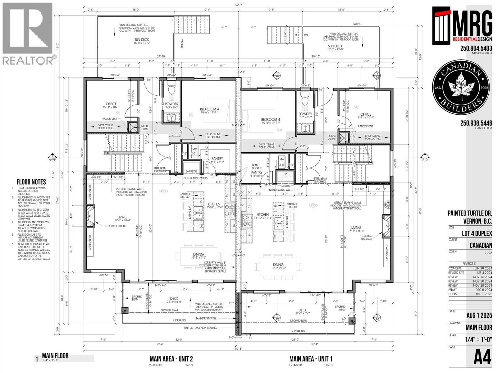
Main Level |
2pc Bathroom |
|
|
8'3'' x 3'3'' |
|
Main Level |
Other |
|
|
22'6'' x 8'0'' |
|
Main Level |
Bedroom |
|
|
11'11'' x 10'6'' |
|
Main Level |
Office |
|
|
10'11'' x 9'11'' |
|
Main Level |
Pantry |
|
|
6'8'' x 5'8'' |
|
Main Level |
Dining Room |
|
|
13'3'' x 9'6'' |
|
Main Level |
Living Room |
|
|
18'4'' x 17'1'' |
|
Main Level |
Kitchen |
|
|
11'10'' x 11'4'' |
https://www.realtor.ca/real-estate/28788448/4317-painted-turtle-drive-vernon-bella-vista