3 Bedroom
3 Bathroom
2330 sqft
Fireplace
See Remarks
Baseboard Heaters, See Remarks
$839,000
Here is your opportunity to own a beautifully updated two-storey home on a desirable corner lot in Peachland, offering exceptional walkability plus space for a boat and RV. Inside, this professionally designed 3-bedroom, 2.5-bath home blends style and function with thoughtful upgrades throughout. The main living space showcases whitewashed cedar ceilings, a resurfaced fireplace, and a stunning new kitchen with a wine fridge. The ensuite features a spacious walk-in rain shower, while the lower bathroom offers heated floors for added comfort. A private deck off the primary bedroom creates the perfect retreat for morning coffee or evening unwinding, while the 180-degree wraparound deck off the main living area extends your living space beautifully. Professionally sealed with a zero-seam finish, it offers durability and year-round enjoyment. Adding even more flexibility and value is the newly renovated detached cabin, fully equipped with heat, air conditioning, its own kitchen, private deck, and outdoor shower. Whether used for guests or family, this detached space is a standout feature. Outside, the property impresses with zero-scape landscaping, a new retaining wall, upgraded driveway, and low-voltage landscape lighting for striking curb appeal day and night. A private back deck offers room for outdoor dining and garden beds. The roof is approximately 10 years old, and the property is serviced with 200-amp power to the house and 60-amp service to the cabin. Luxury-inspired, designer-planned, and truly move-in ready. (id:36541)
Property Details
|
MLS® Number
|
10375926 |
|
Property Type
|
Single Family |
|
Neigbourhood
|
Peachland |
|
Amenities Near By
|
Recreation, Schools, Shopping |
|
Features
|
Corner Site |
|
Parking Space Total
|
1 |
|
View Type
|
Lake View, Mountain View, View (panoramic) |
Building
|
Bathroom Total
|
3 |
|
Bedrooms Total
|
3 |
|
Appliances
|
Refrigerator, Dishwasher, Dryer, Range - Electric, Microwave, Washer |
|
Basement Type
|
Full, Remodeled Basement |
|
Constructed Date
|
1969 |
|
Construction Style Attachment
|
Detached |
|
Cooling Type
|
See Remarks |
|
Fireplace Fuel
|
Gas |
|
Fireplace Present
|
Yes |
|
Fireplace Total
|
2 |
|
Fireplace Type
|
Unknown |
|
Flooring Type
|
Bamboo, Ceramic Tile, Hardwood, Other |
|
Half Bath Total
|
1 |
|
Heating Fuel
|
Electric |
|
Heating Type
|
Baseboard Heaters, See Remarks |
|
Roof Material
|
Asphalt Shingle |
|
Roof Style
|
Unknown |
|
Stories Total
|
2 |
|
Size Interior
|
2330 Sqft |
|
Type
|
House |
|
Utility Water
|
Municipal Water |
Parking
Land
|
Access Type
|
Easy Access |
|
Acreage
|
No |
|
Land Amenities
|
Recreation, Schools, Shopping |
|
Sewer
|
Septic Tank |
|
Size Irregular
|
0.25 |
|
Size Total
|
0.25 Ac|under 1 Acre |
|
Size Total Text
|
0.25 Ac|under 1 Acre |
Rooms
| Level |
Type |
Length |
Width |
Dimensions |
|
Basement |
Bedroom |
|
|
11'4'' x 13'1'' |
|
Basement |
Bedroom |
|
|
9'1'' x 10'2'' |
|
Basement |
Full Bathroom |
|
|
8'6'' x 10'2'' |
|
Basement |
Recreation Room |
|
|
21'3'' x 13'1'' |
|
Main Level |
Other |
|
|
11'1'' x 13'3'' |
|
Main Level |
Other |
|
|
6'9'' x 10'2'' |
|
Main Level |
4pc Ensuite Bath |
|
|
11'2'' x 7'9'' |
|
Main Level |
Primary Bedroom |
|
|
11'6'' x 13'6'' |
|
Main Level |
Partial Bathroom |
|
|
5'5'' x 5'7'' |
|
Main Level |
Dining Room |
|
|
12'0'' x 11'0'' |
|
Main Level |
Living Room |
|
|
16'0'' x 13'0'' |
|
Main Level |
Kitchen |
|
|
13'10'' x 9'7'' |
|
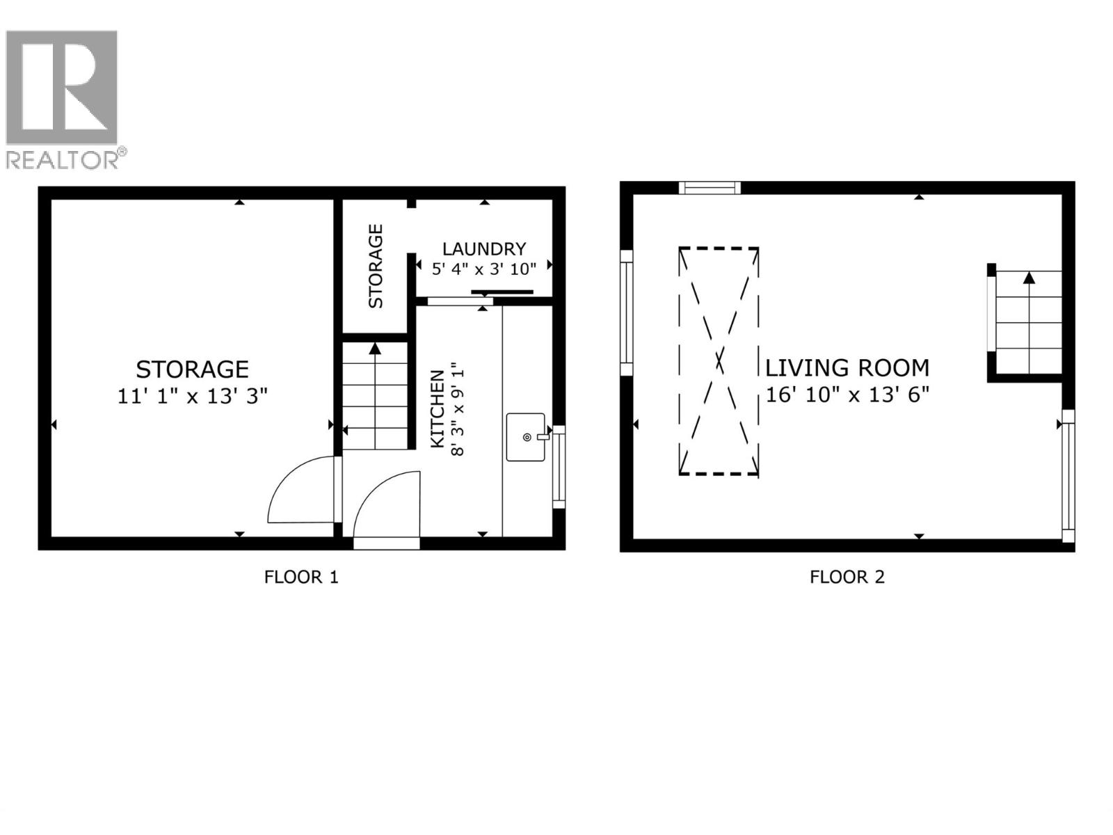
Secondary Dwelling Unit |
Kitchen |
|
|
8'3'' x 9'1'' |
|
Secondary Dwelling Unit |
Partial Bathroom |
|
|
5'4'' x 3'10'' |
|
Secondary Dwelling Unit |
Living Room |
|
|
16'10'' x 13'6'' |
https://www.realtor.ca/real-estate/29590469/3991-desert-pines-avenue-peachland-peachland