LOADING

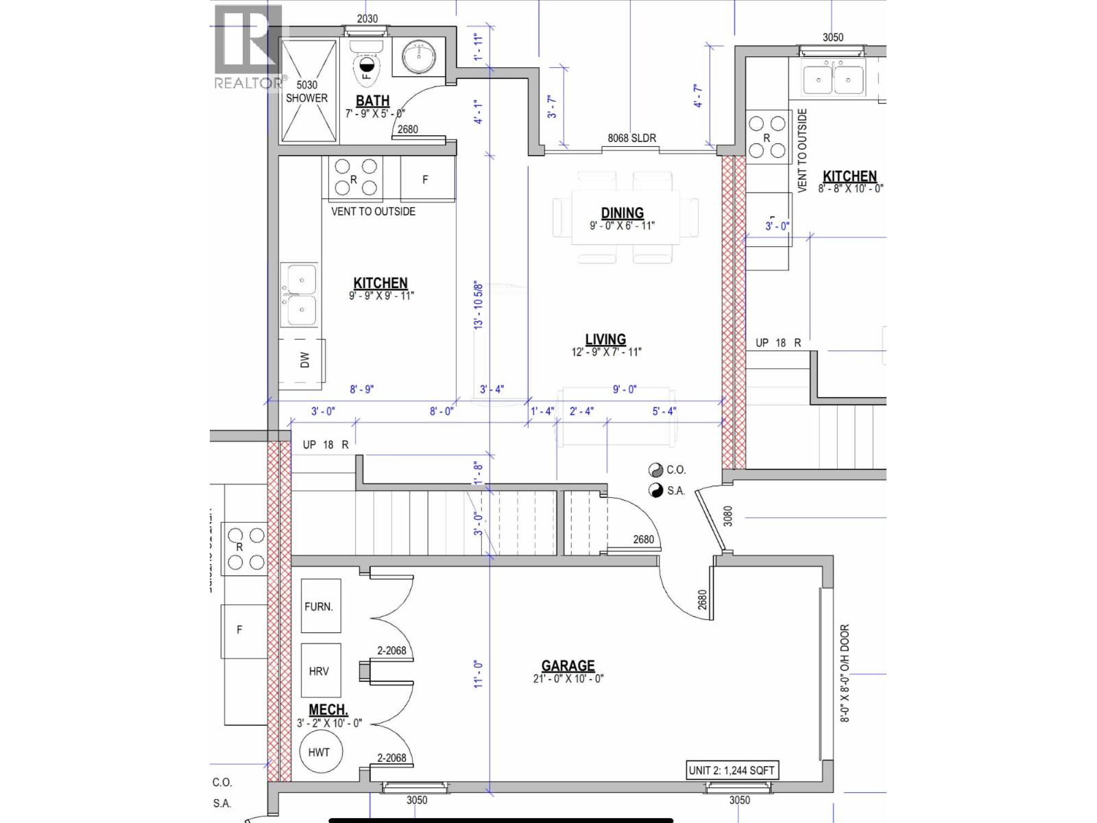
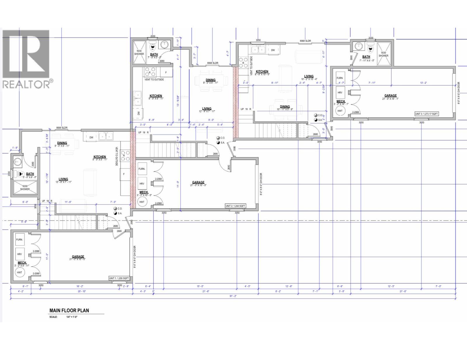
3732 Toba Road Unit# 2 Castlegar, British Columbia V1N 4Y3

2 Bedroom 2 Bathroom 1244 sqft
Central Air Conditioning Forced Air, See Remarks

$499,000

Luxury Modern Living Meets Nature! Discover 3 stunning brand-new units to choose from in this beautifully designed modern triplex. Each home offers 2 spacious bedrooms and 2 bathrooms, thoughtfully designed with high-end finishes throughout. The primary suite features a generous walk-in closet, and a stylish ensuite. Enjoy the bright, open concept living space with over height ceilings, recessed lighting, and large windows that fill the home with natural light. Additional highlights include: EV charger, 5 appliances included, electric garage door opener, blinds and window screens, BBQ gas connection, roughed in central vac. Each unit comes with a single car garage plus additional driveway parking. Experience luxury, comfort, and the beauty of nature, all in one exceptional new home! Estimated completion for 2026 (id:36541)

Property Details

MLS® Number 10366745
Property Type Single Family
Neigbourhood South Castlegar
Parking Space Total 2

Building

Bathroom Total 2
Bedrooms Total 2
Constructed Date 2025
Construction Style Attachment Attached
Cooling Type Central Air Conditioning
Heating Type Forced Air, See Remarks
Roof Material Asphalt Shingle
Roof Style Unknown
Stories Total 2
Size Interior 1244 Sqft
Type Triplex
Utility Water Municipal Water

Parking

Attached Garage 1

Land

Acreage No
Sewer Municipal Sewage System
Size Total Text Under 1 Acre

Rooms

Level Type Dimensions
Second Level 4pc Ensuite Bath Measurements not available
Second Level Bedroom 9'8'' x 12'9''
Main Level Primary Bedroom 10'1'' x 15'2''
Main Level Laundry Room 5'2'' x 5'7''
Main Level 4pc Bathroom Measurements not available
Main Level Kitchen 9'9'' x 9'11''
Main Level Dining Room 6'11'' x 9'
Main Level Living Room 7'11'' x 12'9''

https://www.realtor.ca/real-estate/29045138/3732-toba-road-unit-2-castlegar-south-castlegar

Interested?

Contact us for more information


Generating Captcha

RE/MAX All Pro Realty
102 - 2032 Columbia Avenue
Castlegar, British Columbia V1N 2W7

(250) 365-6767

Your Favourites

 

No Favourites Found