3 Bedroom
3 Bathroom
3180 sqft
Ranch
Heat Pump
In Floor Heating, Heat Pump, Hot Water, See Remarks
Acreage
Level, Underground Sprinkler
$899,000
Executive rancher with breathtaking views of river, valleys, and mountains. This custom-built home features a butler pantry, central island, and pull-up bar in the kitchen, along with 10 ft ceilings, hardwood flooring, and natural gas in-floor heating. The spacious layout includes 3 bedrooms, 3 bathrooms, and extra-large rooms, all flooded with natural light and stunning views. Situated on 2 1/2 acres, this property offers a private oasis with wrap-around decks, a walk-out basement, automatic irrigation, and access to the Trans Canada Trail. The basement features a sprawling family room with rough in for a wet bar or kitchenette. The workshop is perfect for extra storage. Nestled in a tranquil cul-de-sac, this unique home is a rare find and must be seen to fully appreciate its beauty and exceptional features. Call your agent to view today! (id:36541)
Property Details
|
MLS® Number
|
10377850 |
|
Property Type
|
Single Family |
|
Neigbourhood
|
Grand Forks Rural |
|
Amenities Near By
|
Golf Nearby, Park, Recreation, Schools, Shopping, Ski Area |
|
Community Features
|
Rural Setting |
|
Features
|
Cul-de-sac, Level Lot, Private Setting, Treed, Central Island, One Balcony |
|
Parking Space Total
|
1 |
|
Road Type
|
Cul De Sac |
|
View Type
|
River View, Mountain View, Valley View, View (panoramic) |
Building
|
Bathroom Total
|
3 |
|
Bedrooms Total
|
3 |
|
Appliances
|
Refrigerator, Dishwasher, Dryer, Freezer, Range - Gas, Washer |
|
Architectural Style
|
Ranch |
|
Basement Type
|
Full |
|
Constructed Date
|
2007 |
|
Construction Style Attachment
|
Detached |
|
Cooling Type
|
Heat Pump |
|
Exterior Finish
|
Stucco |
|
Flooring Type
|
Concrete, Hardwood |
|
Heating Type
|
In Floor Heating, Heat Pump, Hot Water, See Remarks |
|
Roof Material
|
Metal |
|
Roof Style
|
Unknown |
|
Stories Total
|
1 |
|
Size Interior
|
3180 Sqft |
|
Type
|
House |
|
Utility Water
|
Shared Well |
Parking
|
See Remarks
|
|
|
Attached Garage
|
1 |
|
R V
|
|
Land
|
Access Type
|
Easy Access |
|
Acreage
|
Yes |
|
Land Amenities
|
Golf Nearby, Park, Recreation, Schools, Shopping, Ski Area |
|
Landscape Features
|
Level, Underground Sprinkler |
|
Sewer
|
Septic Tank |
|
Size Irregular
|
2.52 |
|
Size Total
|
2.52 Ac|1 - 5 Acres |
|
Size Total Text
|
2.52 Ac|1 - 5 Acres |
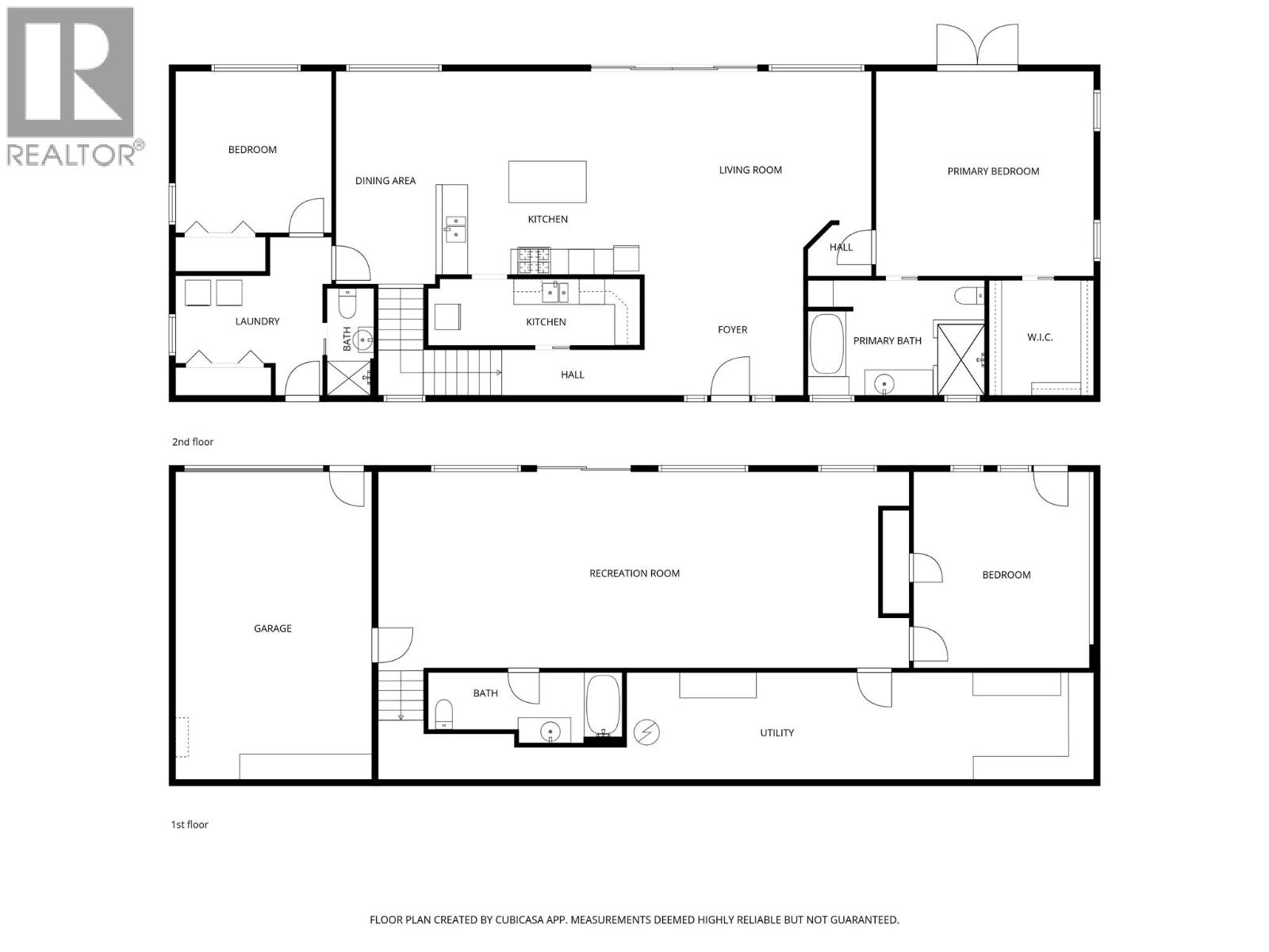
Rooms
| Level |
Type |
Length |
Width |
Dimensions |
|
Basement |
Full Bathroom |
|
|
Measurements not available |
|
Basement |
Bedroom |
|
|
13'0'' x 15'0'' |
|
Basement |
Family Room |
|
|
16'0'' x 40'0'' |
|
Main Level |
Laundry Room |
|
|
7'0'' x 10'0'' |
|
Main Level |
Full Bathroom |
|
|
8'0'' x 16'0'' |
|
Main Level |
Full Ensuite Bathroom |
|
|
9'0'' x 13'0'' |
|
Main Level |
Bedroom |
|
|
12'0'' x 13'0'' |
|
Main Level |
Primary Bedroom |
|
|
15'0'' x 17'0'' |
|
Main Level |
Foyer |
|
|
10'0'' x 12'0'' |
|
Main Level |
Dining Room |
|
|
10'0'' x 12'0'' |
|
Main Level |
Kitchen |
|
|
16'0'' x 16'0'' |
|
Main Level |
Living Room |
|
|
16'0'' x 18'0'' |
https://www.realtor.ca/real-estate/29421736/3285-eagle-ridge-road-grand-forks-grand-forks-rural