LOADING

3063 Hornsberger Road Unit# 6 Salmon Arm, British Columbia V1E 4M1

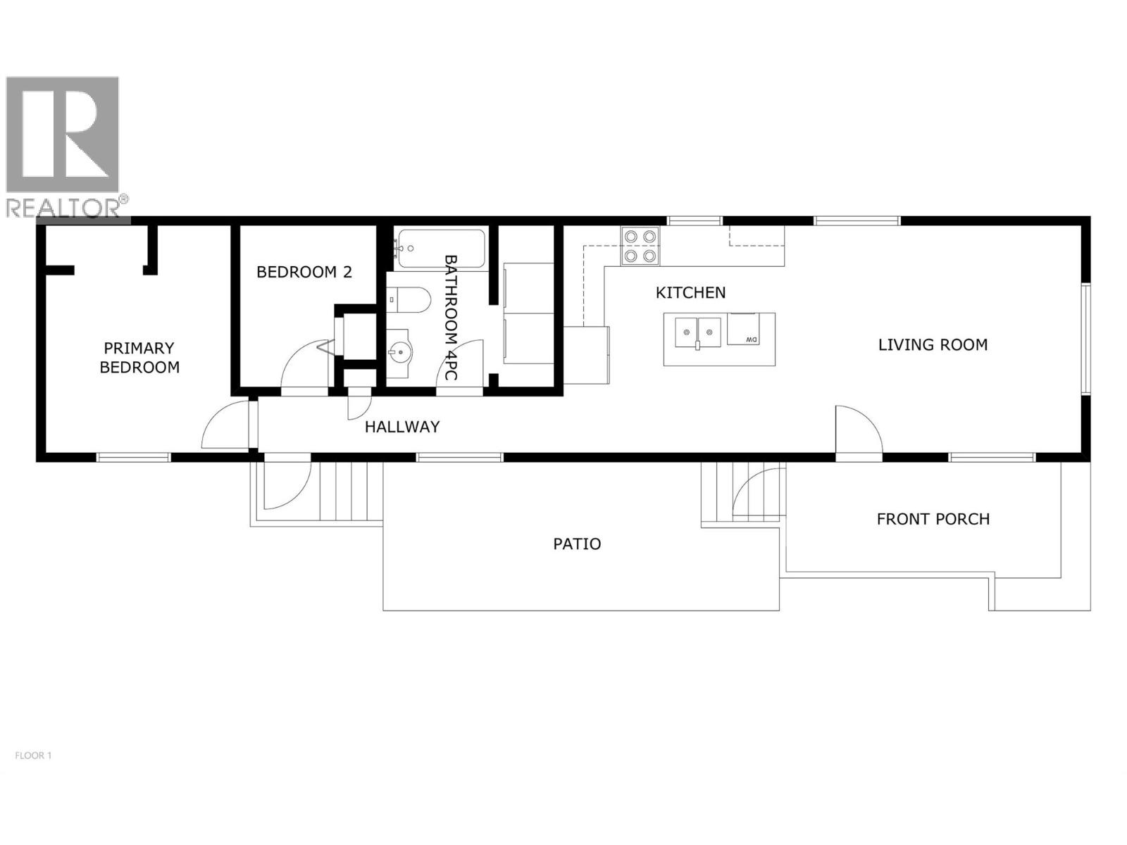
2 Bedroom 1 Bathroom 679 sqft
Forced Air, See Remarks

$229,900

Maintenance, Pad Rental

$500 Monthly

Nicely updated home in Quiet Silver Creek Neighbourhood. This 2-bedroom, 1-bathroom home offers a bright and open main living area including the kitchen with island and stainless steel appliances. Updated 4 piece bathroom with an easily accessible laundry area. Enjoy the fully fenced yard with tasteful metal privacy fence, covered deck, open patio area, plus a 7' x 16' storage shed. Many updates include the roof, siding and windows. Located in a pet friendly park (allowing 2 dogs or 2 cats with restrictions), a short walk to the community store, elementary school and just 15 minutes to Salmon Arm. (id:36541)

Property Details

MLS® Number 10378120
Property Type Single Family
Neigbourhood Salmon Valley
Community Features Pet Restrictions
Features Central Island
Parking Space Total 2

Building

Bathroom Total 1
Bedrooms Total 2
Constructed Date 1973
Exterior Finish Vinyl Siding
Flooring Type Laminate
Heating Type Forced Air, See Remarks
Roof Material Metal
Roof Style Unknown
Stories Total 1
Size Interior 679 Sqft
Type Manufactured Home
Utility Water Well

Land

Acreage No
Fence Type Fence
Sewer Septic Tank
Size Total Text Under 1 Acre

Rooms

Level Type Dimensions
Main Level 4pc Bathroom 8'5'' x 5'2''
Main Level Bedroom 7'4'' x 6'3''
Main Level Primary Bedroom 10'3'' x 9'3''
Main Level Dining Room 7'6'' x 6'7''
Main Level Kitchen 11'6'' x 11'4''
Main Level Living Room 11'6'' x 10'

https://www.realtor.ca/real-estate/29433436/3063-hornsberger-road-unit-6-salmon-arm-salmon-valley

Interested?

Contact us for more information


Generating Captcha

RE/MAX Shuswap Realty
#105-650 Trans Canada Hwy
Salmon Arm, British Columbia V1E 2S6

(250) 832-7051
(250) 832-2777
https://www.remaxshuswap.ca/

RE/MAX Shuswap Realty
#105-650 Trans Canada Hwy
Salmon Arm, British Columbia V1E 2S6

(250) 832-7051
(250) 832-2777
https://www.remaxshuswap.ca/

Your Favourites

 

No Favourites Found