LOADING

30 Wood Duck Way Osoyoos, British Columbia V0H 1V5

Waterfront On Pond

$349,900

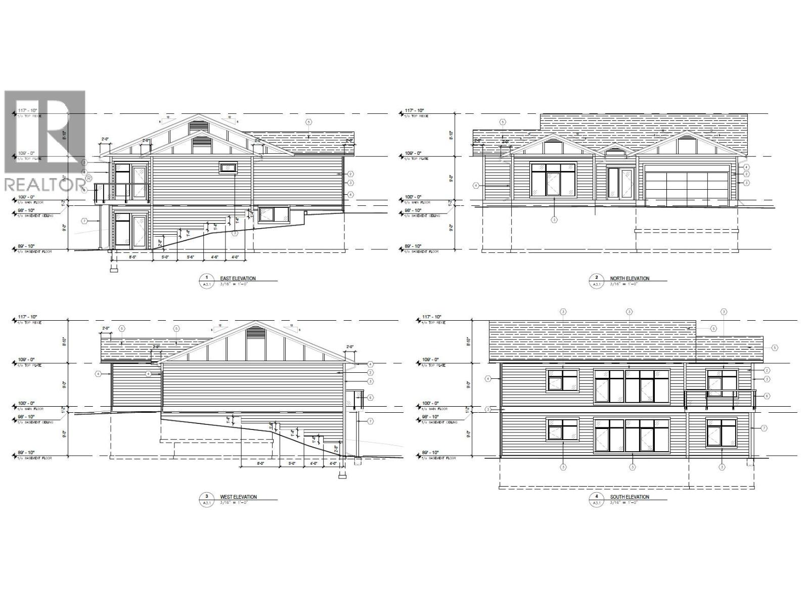
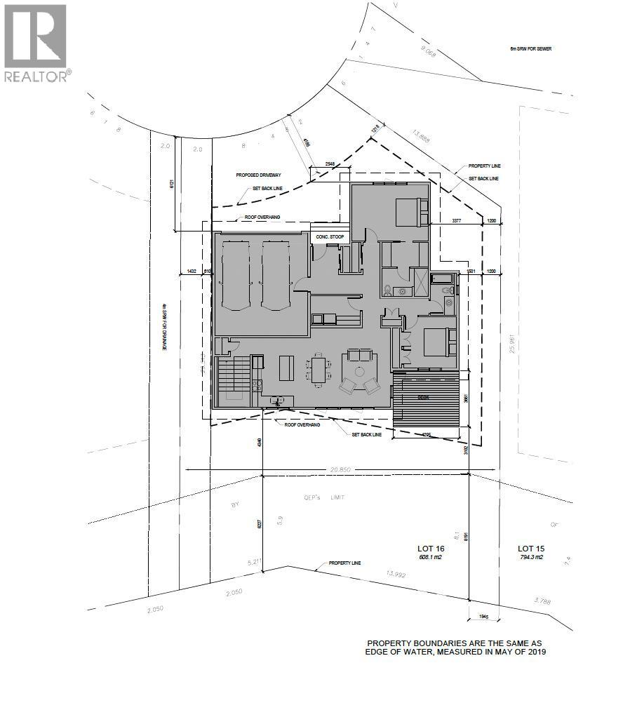
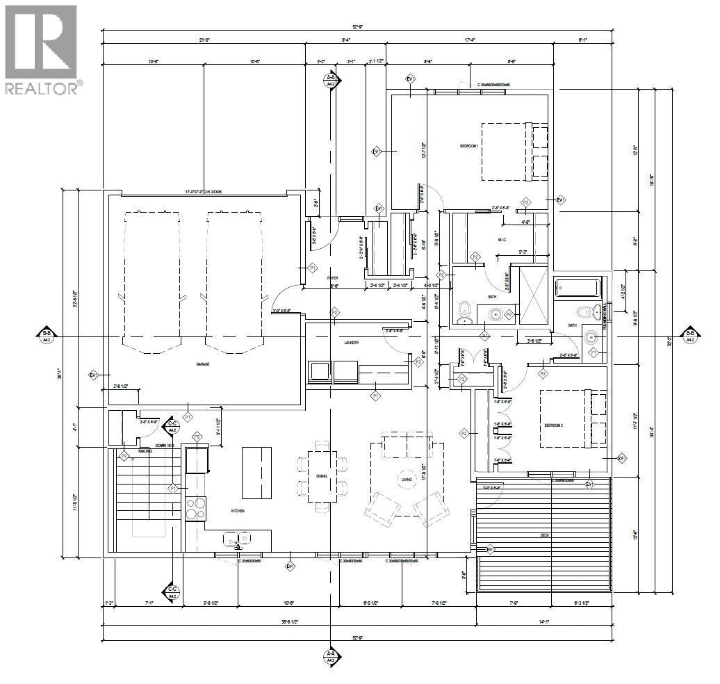
Now available in Osoyoos’s newest subdivision, Meadowlark, this rare waterfront lot offers the perfect opportunity to build your dream home in one of the South Okanagan’s most desirable new communities. Centrally located and close to schools, downtown amenities, golf courses, and recreation, this property combines convenience with the peaceful charm of waterfront living. The lot’s gentle slope is ideally suited for a walkout rancher design with building plans available for your convenience. Whether you’re looking to build your forever home, an investment property, or a seasonal retreat, 21 Wood Duck Way offers flexibility and exceptional value. There’s also an option to purchase this lot individually or as part of a package with other available sites in Meadowlark. Don’t miss this rare opportunity to create your custom home in a growing neighbourhood surrounded by modern builds and stunning natural beauty. (id:36541)

Property Details

MLS® Number 10367309
Property Type Vacant Land
Neigbourhood Osoyoos
Road Type Paved Road
Water Front Type Waterfront On Pond

Building

Type Other
Utility Water Municipal Water

Land

Acreage No
Sewer Municipal Sewage System
Size Irregular 0.15
Size Total 0.15 Ac|under 1 Acre
Size Total Text 0.15 Ac|under 1 Acre
Surface Water Ponds

Utilities

Electricity At Lot Line
Natural Gas At Lot Line
Sewer Available
Water At Lot Line

https://www.realtor.ca/real-estate/29061720/30-wood-duck-way-osoyoos-osoyoos

Interested?

Contact us for more information


Generating Captcha

RE/MAX Realty Solutions
8507 A Main St., Po Box 1099
Osoyoos, British Columbia V0H 1V0

(250) 495-7441
(250) 495-6723

Your Favourites

 

No Favourites Found