LOADING

2805 Westsyde Road Unit# 1 Kamloops, British Columbia V2B 7E1

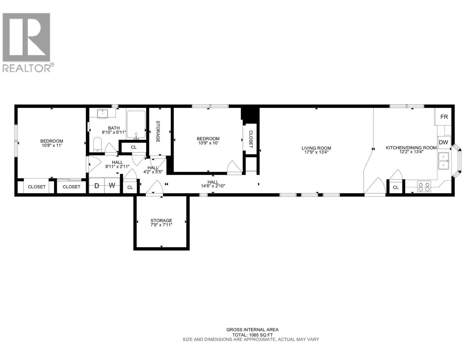
2 Bedroom 1 Bathroom 924 sqft
Central Air Conditioning Forced Air

$229,900

Maintenance, Pad Rental

$675 Monthly

Great floor plan! Spacious over 900 sq.ft. home featuring an open-concept layout with a bright kitchen. Generous living room is perfect for everyday living and entertaining. This well-designed home offers 2 bedrooms and a large, functional bathroom with great overall flow. Recent updates include new wide-plank flooring in the living room, hallway, and a primary bedroom. Situated on the largest lot in the park. Enjoy ample parking, a spacious yard, and a raised garden area at the back. Ideally positioned as the first lot with added privacy on one side next to open space. The fully fenced yard is perfect for children or your dogs. Relax year-round on the large, covered sundeck - rain or shine! This is a fantastic opportunity & must see! Measurements to be verified by buyer. (id:36541)

Property Details

MLS® Number 10383924
Property Type Single Family
Neigbourhood Westsyde

Building

Bathroom Total 1
Bedrooms Total 2
Constructed Date 1980
Cooling Type Central Air Conditioning
Heating Type Forced Air
Roof Material Asphalt Shingle
Roof Style Unknown
Stories Total 1
Size Interior 924 Sqft
Type Manufactured Home
Utility Water Municipal Water

Land

Acreage No
Sewer Municipal Sewage System
Size Total Text Under 1 Acre

Rooms

Level Type Dimensions
Main Level Storage 7'9'' x 7'11''
Main Level Primary Bedroom 10'8'' x 11'
Main Level Full Bathroom Measurements not available
Main Level Bedroom 10'9'' x 10'
Main Level Living Room 17'9'' x 13'4''
Main Level Kitchen 12'2'' x 13'4''

https://www.realtor.ca/real-estate/29625079/2805-westsyde-road-unit-1-kamloops-westsyde

Interested?

Contact us for more information


Generating Captcha

RE/MAX Real Estate (Kamloops)
258 Seymour Street
Kamloops, British Columbia V2C 2E5

(250) 374-3331
(250) 828-9544
https://www.remaxkamloops.ca/

RE/MAX Real Estate (Kamloops)
258 Seymour Street
Kamloops, British Columbia V2C 2E5

(250) 374-3331
(250) 828-9544
https://www.remaxkamloops.ca/

Your Favourites

 

No Favourites Found