LOADING

257 Market Avenue Grand Forks, British Columbia V0H 1H0

3750 sqft
Forced Air

$499,000

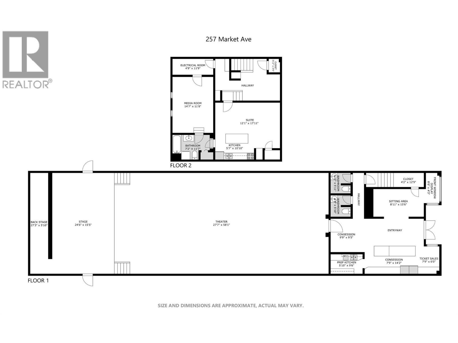
Centrally located in downtown Grand Forks along Market Avenue, this property offers a prime value-add opportunity with strong visibility, walkability, and proximity to established local businesses. The 3,750 sq. ft. building features ~20’ ceilings and an open interior layout, providing excellent flexibility for a range of commercial or mixed-use concepts. Zoned Core Commercial (CC), the property permits retail, office, hospitality, entertainment, and residential uses, including up to 100% residential on the second floor and up to 50% on the main level. This allows for a variety of configurations including live-work, mixed-use, or full repositioning. Retain the character of the existing movie theatre or reimagine the space into a new concept such as a cafe;, restaurant, wellness studio, or boutique commercial venue! The property includes an upper-level suite with kitchen, bathroom, and laundry, offering immediate usability or holding income. Recent upgrades include a newer HVAC system (2019). An ideal opportunity for investors or owner-users seeking to reposition a well-located asset with significant upside through redevelopment or adaptive reuse. (id:36541)

Property Details

MLS® Number 10382143
Property Type Other
Neigbourhood Grand Forks

Building

Exterior Finish Brick
Fire Protection Security System
Heating Type Forced Air
Roof Material Other
Roof Style Unknown
Size Interior 3750 Sqft
Type Other
Utility Water Municipal Water

Land

Acreage No
Sewer Municipal Sewage System
Size Total Text Under 1 Acre

https://www.realtor.ca/real-estate/29569151/257-market-avenue-grand-forks-grand-forks

Interested?

Contact us for more information


Generating Captcha

Grand Forks Realty Ltd
272 Central Avenue
Grand Forks, British Columbia V0H 1H0

(250) 442-2711

Real Broker
#500 - 666 Burrard Street
Vancouver, British Columbia V6C 3P6

1 (888) 828-8447
www.onereal.com/

Real Broker
#500 - 666 Burrard Street
Vancouver, British Columbia V6C 3P6

1 (888) 828-8447
www.onereal.com/

Your Favourites

 

No Favourites Found