LOADING

2081 11 Avenue Ne Unit# 9 Salmon Arm, British Columbia V1E 0G1

2 Bedroom 2 Bathroom 1125 sqft
Fireplace Central Air Conditioning Forced Air, See Remarks

$449,900

Maintenance, Reserve Fund Contributions, Insurance, Ground Maintenance, Other, See Remarks

$245 Monthly

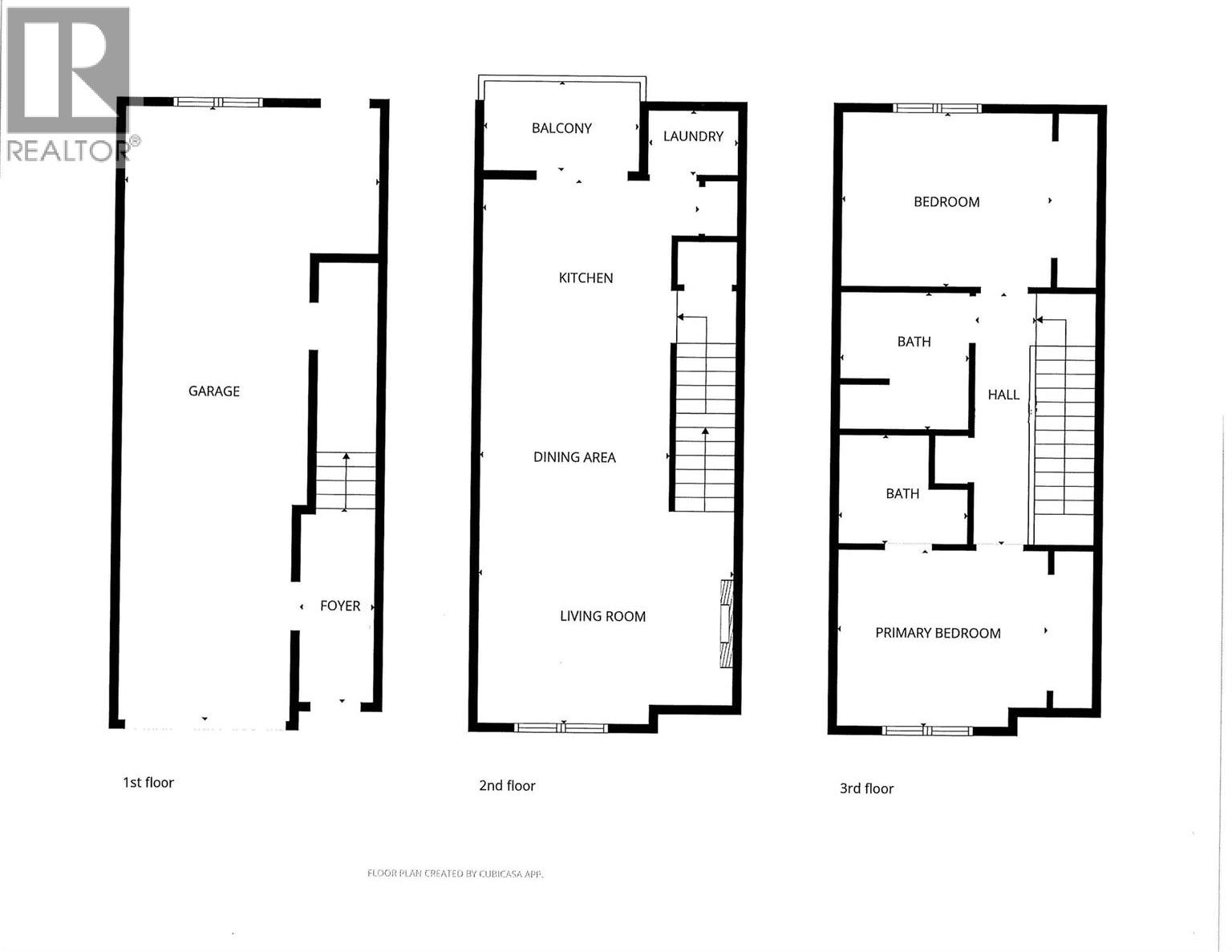
This well-designed 2 bedroom, 2 bathroom townhome, built in 2019, offers modern comfort in a sought after uptown location. The bright, open-concept main floor is designed for both comfort and functionality, featuring a spacious living room with an electric fireplace, a well-appointed kitchen with stainless steel appliances, peninsula seating, and pantry storage, plus easy deck access right off the kitchen—perfect for morning coffee or summer BBQs. A convenient main floor laundry room adds to the thoughtful layout. Upstairs, you’ll find two bedrooms and two full bathrooms, including a primary suite complete with its own 3-piece ensuite. The tandem double garage provides ample parking and extra storage space, making this home as practical as it is appealing. Move-in ready and ideally situated within walking distance to shops, dining, and services, this is low-maintenance living in a location that truly delivers. (id:36541)

Property Details

MLS® Number 10376479
Property Type Single Family
Neigbourhood NE Salmon Arm
Community Name Copperview Corner
Parking Space Total 2

Building

Bathroom Total 2
Bedrooms Total 2
Appliances Range, Refrigerator, Dishwasher, Microwave, Washer/dryer Stack-up
Constructed Date 2019
Construction Style Attachment Attached
Cooling Type Central Air Conditioning
Exterior Finish Vinyl Siding
Fireplace Fuel Electric
Fireplace Present Yes
Fireplace Total 1
Fireplace Type Unknown
Heating Type Forced Air, See Remarks
Roof Material Asphalt Shingle
Roof Style Unknown
Stories Total 3
Size Interior 1125 Sqft
Type Row / Townhouse
Utility Water Municipal Water

Parking

Attached Garage 2

Land

Acreage No
Sewer Municipal Sewage System
Size Total Text Under 1 Acre

Rooms

Level Type Dimensions
Second Level 4pc Bathroom 7'10'' x 7'4''
Second Level Bedroom 11'10'' x 10'
Second Level 3pc Ensuite Bath 7'4'' x 6'2''
Second Level Primary Bedroom 11'10'' x 10'
Basement Other 34'11'' x 10'5''
Basement Foyer 10'7'' x 4'2''
Main Level Laundry Room 5' x 3'8''
Main Level Dining Room 10'4'' x 8'8''
Main Level Kitchen 10'9'' x 10'2''
Main Level Living Room 14'3'' x 12'2''

https://www.realtor.ca/real-estate/29394630/2081-11-avenue-ne-unit-9-salmon-arm-ne-salmon-arm

Interested?

Contact us for more information


Generating Captcha

RE/MAX Shuswap Realty
#105-650 Trans Canada Hwy
Salmon Arm, British Columbia V1E 2S6

(250) 832-7051
(250) 832-2777
https://www.remaxshuswap.ca/

RE/MAX Shuswap Realty
#105-650 Trans Canada Hwy
Salmon Arm, British Columbia V1E 2S6

(250) 832-7051
(250) 832-2777
https://www.remaxshuswap.ca/

Your Favourites

 

No Favourites Found