LOADING

1947 Underhill Street Unit# 1003 Kelowna, British Columbia V1X 7Z5

2 Bedroom 2 Bathroom 1335 sqft
Inground Pool, Outdoor Pool, Pool Central Air Conditioning Forced Air

$649,900

Maintenance,

$591.27 Monthly

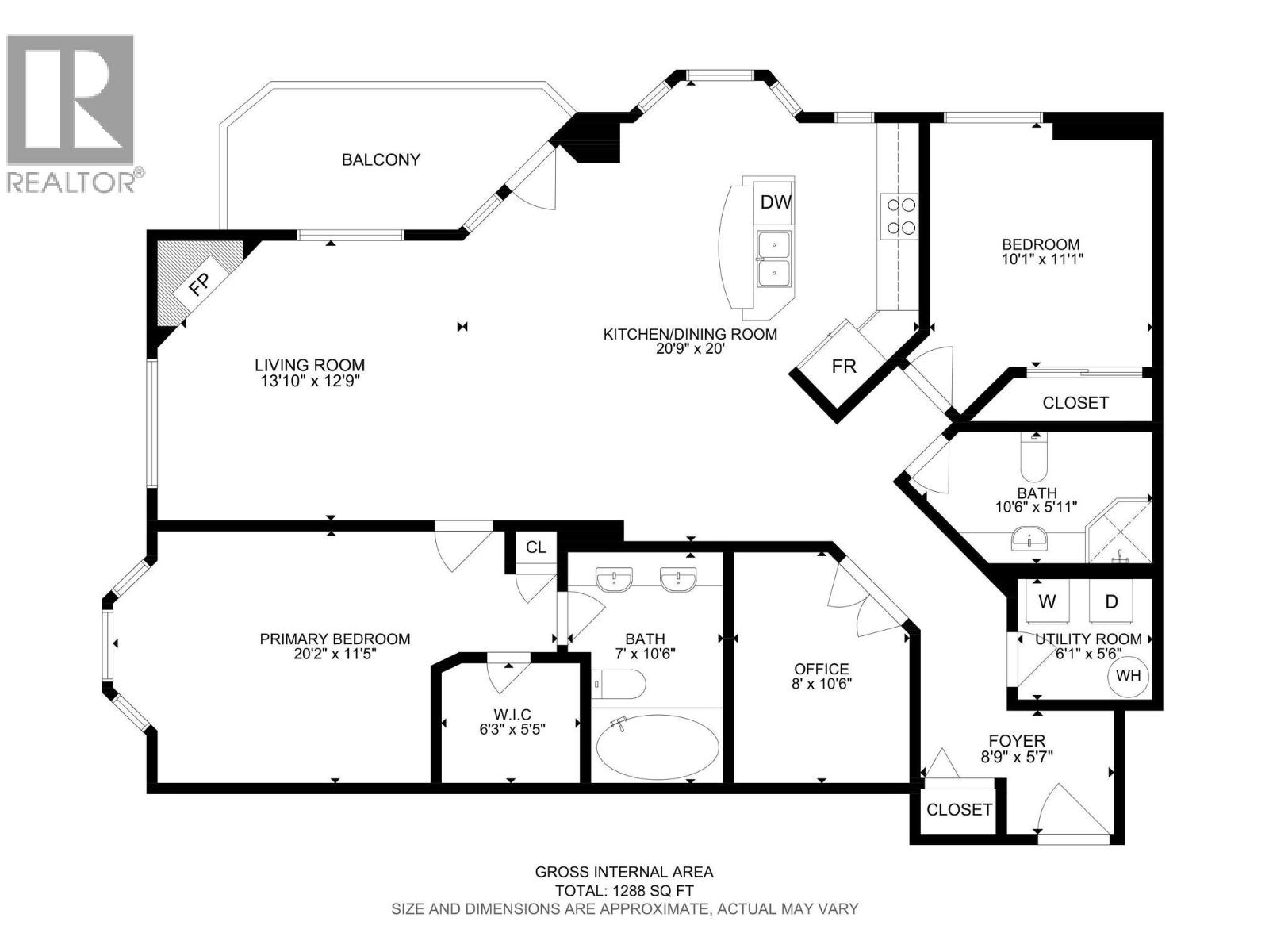
Elevated above it all, this exceptional corner residence at Park Place offers a level of space, light, and views that is rarely found in Kelowna condo living. Perched on the 10th floor south east corner of Park Place, this 1,335 sq ft 2 bed 2 bath plus den suite captures sweeping lake and valley views through walls of windows that flood the home with natural light, while staying cool and comfortable through Kelowna’s long summers with central heating and cooling throughout. 2 side by side underground parking stalls and 3 oversized storage lockers, including one conveniently located on the same floor. Inside, the open concept layout is finished with maple hardwood, a granite island, stainless steel appliances, upgraded lighting, and a gas fireplace that anchors the living space. The spacious primary bedroom features a walk in closet and a well appointed ensuite with a double vanity and soaker tub, offering a comfortable retreat at the end of the day. Park Place elevates the lifestyle with resort style amenities including a pool, hot tub, fitness centre, theatre room, library, pool table, woodworking shop, tennis court, car wash, and guest suite, all within a solid concrete and steel building. The location completes the package. Steps to Costco, a short walk to Mission Creek Greenway, minutes to Orchard Park Shopping Centre, and a quick drive to downtown Kelowna’s beaches, restaurants, and cultural district. (id:36541)

Property Details

MLS® Number 10381764
Property Type Single Family
Neigbourhood Springfield/Spall
Community Name Park Place
Parking Space Total 2
Pool Type Inground Pool, Outdoor Pool, Pool
Storage Type Storage, Locker

Building

Bathroom Total 2
Bedrooms Total 2
Constructed Date 2005
Cooling Type Central Air Conditioning
Heating Type Forced Air
Stories Total 1
Size Interior 1335 Sqft
Type Apartment
Utility Water Municipal Water

Parking

Attached Garage 2
Parkade

Land

Acreage No
Sewer Municipal Sewage System
Size Total Text Under 1 Acre

Rooms

Level Type Dimensions
Main Level Dining Room ' x '
Main Level Den ' x '
Main Level Bedroom ' x '
Main Level Full Bathroom ' x '
Main Level Full Ensuite Bathroom ' x '
Main Level Primary Bedroom ' x '
Main Level Living Room ' x '
Main Level Kitchen ' x '

https://www.realtor.ca/real-estate/29550601/1947-underhill-street-unit-1003-kelowna-springfieldspall

Interested?

Contact us for more information


Generating Captcha

Royal LePage Kelowna
#1 - 1890 Cooper Road
Kelowna, British Columbia V1Y 8B7

(250) 860-1100
(250) 860-0595
royallepagekelowna.com/

Your Favourites

 

No Favourites Found