LOADING

1938 Foxwood Trail Unit# 6 Windermere, British Columbia V0B 2L2

3 Bedroom 2 Bathroom 1400 sqft
Bungalow Forced Air

$449,900

Maintenance, Ground Maintenance, Other, See Remarks

$50 Monthly

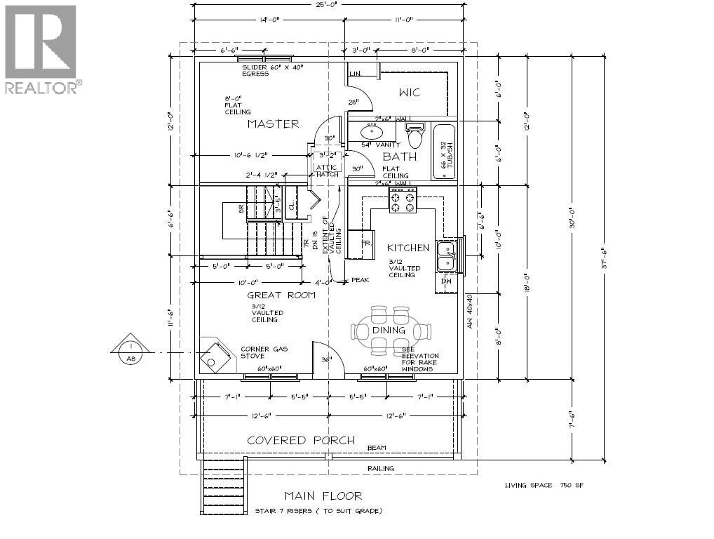
Welcome to your new home in the peaceful and picturesque community of Windermere, BC! Built in 2025, this stunning energy-efficient home combines modern luxury with everyday comfort—and comes complete with a new home warranty for added peace of mind. With 3 spacious bedrooms, 2 beautifully appointed bathrooms, and a great layout, this thoughtfully designed home offers incredible value for families, couples, or those seeking a stylish retreat. Step into the bright, open-concept living area, perfect for entertaining or cozy nights in. The kitchen is a true showstopper, featuring sleek stainless steel appliances, elegant quartz countertops, and smart layout designed to make cooking and hosting a joy. Wake up to breathtaking mountain views, unwind on your private deck, and experience the natural serenity BC is known for—all while enjoying the benefits of a modern, energy-conscious build designed for both comfort and cost savings. Notable upgrades include triple pane windows, extra insulation in the walls/roof and a metal roof. Call your Realtor and book a showing today! there are 4 different sizes/layouts/price points of these so reach out for more information. Price + GST. Photos are of a different but similar unit with the same layout and size just different colors. (id:36541)

Property Details

MLS® Number 10373069
Property Type Single Family
Neigbourhood Windermere
Community Name Tanglewood Cabins at The Trails
Community Features Pets Allowed, Pets Allowed With Restrictions, Rentals Allowed
Parking Space Total 2
View Type Mountain View, View (panoramic)

Building

Bathroom Total 2
Bedrooms Total 3
Appliances Refrigerator, Dishwasher, Range - Electric, Hood Fan
Architectural Style Bungalow
Basement Type Full
Constructed Date 2025
Construction Style Attachment Detached
Exterior Finish Other
Flooring Type Carpeted, Tile, Vinyl
Foundation Type Insulated Concrete Forms
Heating Fuel Electric
Heating Type Forced Air
Roof Material Metal
Roof Style Unknown
Stories Total 1
Size Interior 1400 Sqft
Type House
Utility Water Municipal Water

Parking

Street
Stall

Land

Acreage No
Sewer Municipal Sewage System
Size Total Text Under 1 Acre

Rooms

Level Type Dimensions
Basement Full Bathroom 8' x 10'6''
Basement Bedroom 12' x 10'6''
Basement Bedroom 14'6'' x 12'
Basement Living Room 14'6'' x 11'6''
Main Level Full Bathroom 11' x 6'
Main Level Kitchen 11' x 10'
Main Level Primary Bedroom 14' x 12'

https://www.realtor.ca/real-estate/29616087/1938-foxwood-trail-unit-6-windermere-windermere

Interested?

Contact us for more information


Generating Captcha

Cir Realty
1781 Abbott Street
Kelowna, British Columbia V1Y 1B3

(250) 863-8662
www.cirrealty.ca/

Your Favourites

 

No Favourites Found