LOADING

1815 Central Avenue Grand Forks, British Columbia V0H 1H2

16030 sqft
Central Air Conditioning Baseboard Heaters, Other

$1,349,000

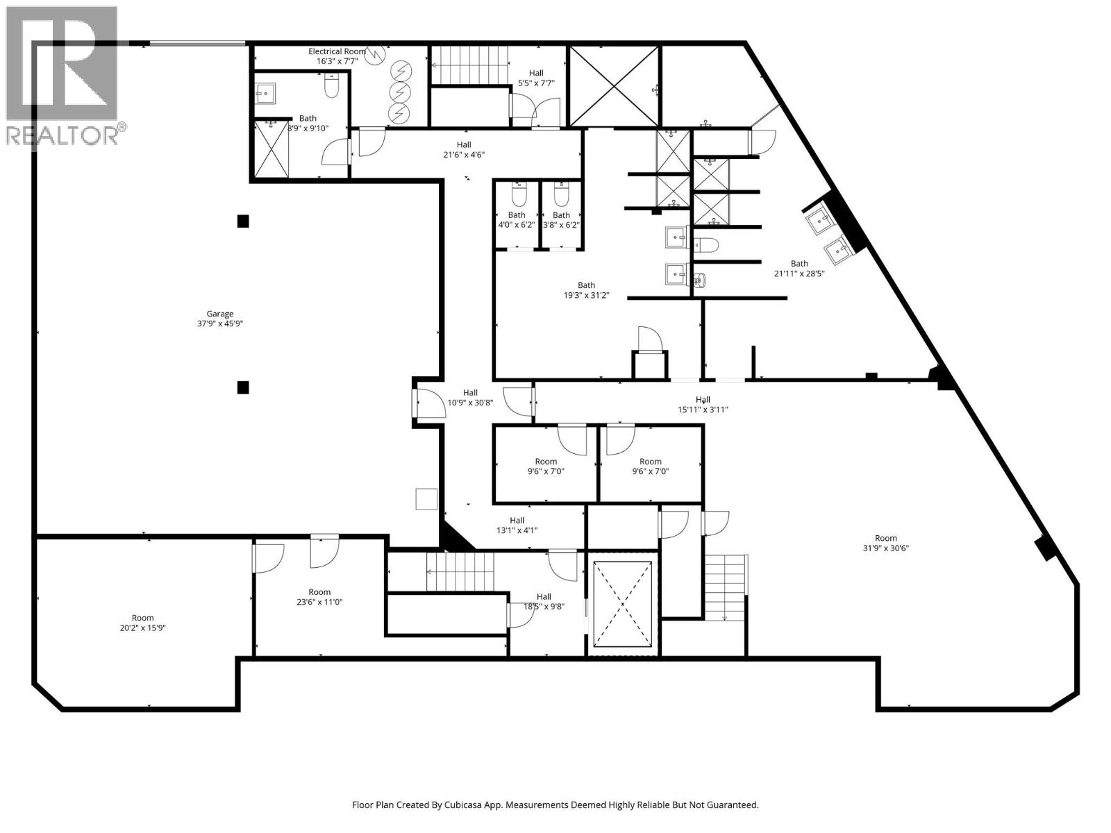
Priced below professional appraisal! Prime commercial investment in the heart of Grand Forks! This two-storey, 10,700+ sq.ft. building with full basement sits on a high-visibility corner lot along Central Avenue. Features seven leasable units, elevator access, and extensive modern renovations. Current tenants provide a strong and diversified income stream. Zoned NC (Neighbourhood Commercial) with flexible permitted uses. CAP rate 5.5%* and excellent potential for both investors and owner-operators. Well-maintained and ideally located along the highway! (id:36541)

Property Details

MLS® Number 10366936
Property Type Other
Neigbourhood Grand Forks
Amenities Near By Recreation, Schools, Shopping
Features Irregular Lot Size, Elevator, Wheelchair Access
Parking Space Total 22

Building

Constructed Date 1996
Cooling Type Central Air Conditioning
Exterior Finish Stucco
Fire Protection Sprinkler System-fire
Heating Type Baseboard Heaters, Other
Roof Material Other
Roof Style Unknown
Size Interior 16030 Sqft
Type Residential Commercial Mix
Utility Water Municipal Water

Land

Access Type Easy Access, Highway Access
Acreage No
Current Use Mixed Use
Land Amenities Recreation, Schools, Shopping
Sewer Municipal Sewage System
Size Irregular 0.39
Size Total 0.39 Ac|under 1 Acre
Size Total Text 0.39 Ac|under 1 Acre

Utilities

Cable Available
Electricity Available
Natural Gas Available
Telephone Available
Sewer Available
Water Available

https://www.realtor.ca/real-estate/29040163/1815-central-avenue-grand-forks-grand-forks

Interested?

Contact us for more information


Generating Captcha

Royal LePage Little Oak Realty
101 - 15955 Fraser Highway
Surrey, British Columbia V4N 0Y3

(778) 565-1397
littleoakrealty.com/

Your Favourites

 

No Favourites Found