LOADING

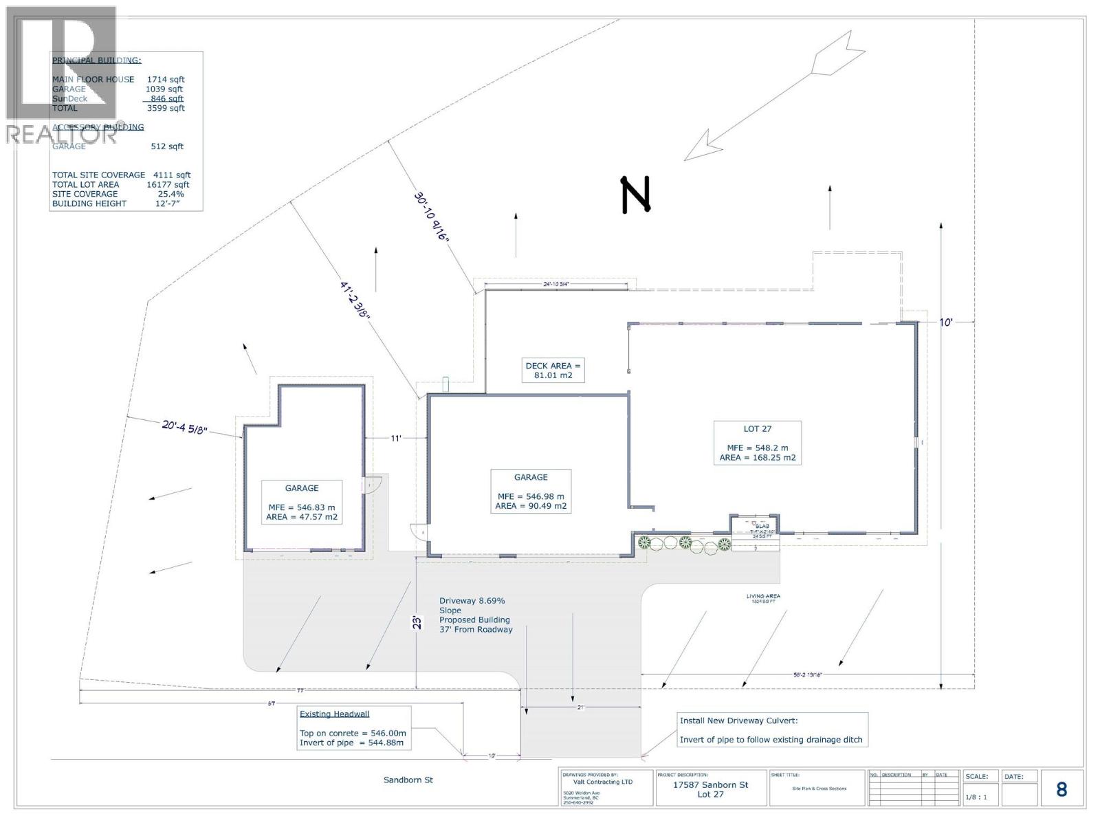
17587 Sanborn Street Summerland, British Columbia V0H 1Z3

3 Bedroom 2 Bathroom 1900 sqft
Ranch Fireplace Central Air Conditioning, Heat Pump Forced Air, Heat Pump, See Remarks Landscaped, Level

$1,599,000

Currently under construction in Hunters Hill, Summerland BC, this new home package offers a rare combination anchored by a premium 154 ft wide lot with unobstructed lake and city views — a sprawling rancher, oversized triple garage, 550 sq ft detached multipurpose building, and dedicated RV parking. The main home hosts 3 bedrooms, including a luxury primary suite with a private 5-piece ensuite featuring a standalone tub, custom tiled shower, walk-in closet with millwork and seamless access to the outdoor decks. The great room lives up to its name — vaulted ceilings and a wall of windows frame the incredible views, enjoyed from the open, modern, and luxurious kitchen with walk-in pantry, sit-up island, and the generous living and dining area warmed up by a custom gas fireplace. A 462 sq ft covered patio extends from the great room, expanding your living space with the added privacy of no neighbour to the north. The laundry/mudroom is fully built out with cabinetry and has access from the garage and home. The triple car garage spans 1,000 sq ft with access to a 5 ft crawl space — great additional storage. The detached building will be prepped and ready to create whatever your needs call for — art studio, toy storage, or a future carriage home. Landscaping is included for the large, flat yard — a fitting finish to this exceptional offering. The builder is open to customization with an in-house interior designer, depending on the current stage of construction. (id:36541)

Property Details

MLS® Number 10381892
Property Type Single Family
Neigbourhood Main Town
Amenities Near By Golf Nearby, Park, Recreation, Schools, Shopping
Community Features Pets Allowed
Features Level Lot, Corner Site
Parking Space Total 3
View Type City View, Lake View, Mountain View, Valley View, View (panoramic)

Building

Bathroom Total 2
Bedrooms Total 3
Architectural Style Ranch
Basement Type Crawl Space
Constructed Date 2026
Construction Style Attachment Detached
Cooling Type Central Air Conditioning, Heat Pump
Exterior Finish Other
Fireplace Fuel Gas
Fireplace Present Yes
Fireplace Total 1
Fireplace Type Unknown
Heating Type Forced Air, Heat Pump, See Remarks
Roof Material Other
Roof Style Unknown
Stories Total 1
Size Interior 1900 Sqft
Type House
Utility Water Municipal Water

Parking

Attached Garage 3

Land

Access Type Easy Access
Acreage No
Land Amenities Golf Nearby, Park, Recreation, Schools, Shopping
Landscape Features Landscaped, Level
Sewer Municipal Sewage System
Size Irregular 0.37
Size Total 0.37 Ac|under 1 Acre
Size Total Text 0.37 Ac|under 1 Acre

Rooms

Level Type Dimensions
Main Level Other 10'1'' x 7'7''
Main Level Full Ensuite Bathroom 10'1'' x 7'7''
Main Level Full Bathroom 7'6'' x 5'1''
Main Level Laundry Room 7'9'' x 2'10''
Main Level Bedroom 10'11'' x 12'9''
Main Level Bedroom 12'3'' x 10'9''
Main Level Primary Bedroom 15'7'' x 12'2''
Main Level Living Room 20' x 27'
Main Level Dining Room 12' x 14'
Main Level Kitchen 14' x 18'

https://www.realtor.ca/real-estate/29551252/17587-sanborn-street-summerland-main-town

Interested?

Contact us for more information


Generating Captcha

Chamberlain Property Group Inc.
201-3115 Skaha Lake Rd.
Penticton, British Columbia V2A 6G5

(778) 476-7778
www.chamberlainpropertygroup.ca/

Chamberlain Property Group Inc.
201-3115 Skaha Lake Rd.
Penticton, British Columbia V2A 6G5

(778) 476-7778
www.chamberlainpropertygroup.ca/

Your Favourites

 

No Favourites Found