3 Bedroom
2 Bathroom
2018 sqft
Ranch
Forced Air, See Remarks
$610,000
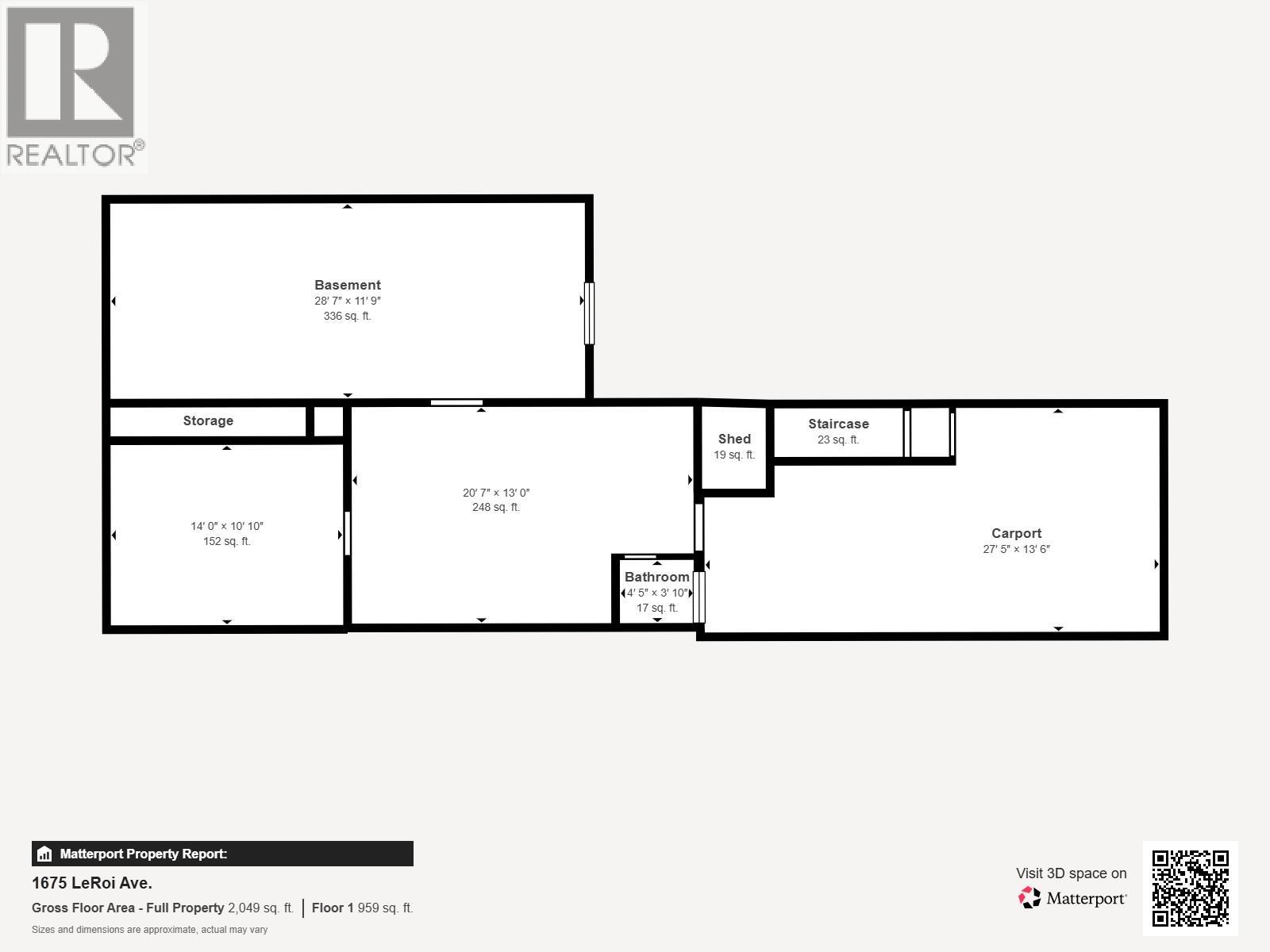
In the heart of Rossland, this beautifully renovated home was thoughtfully updated in 2020 with attention to energy efficiency. The main floor features new insulation and wiring, Energy Star windows, a high-efficiency gas furnace, and Whirlpool stainless-steel kitchen appliances. The well-appointed kitchen showcases light wood cabinetry, butcher block-style countertops, a raised eating bar, stainless appliances, and a statement range hood. Step from the dining area onto the new 16'5"" x 14'10"" deck (2023) with perimeter lighting—perfect for Rossland potlucks or relaxing summer evenings. The spacious living area features recessed lighting, durable LVP flooring, and is wired for a projector and 7.1 surround sound. The primary bedroom has plenty of natural light, mirrored closet doors and wood accents. Additional bedrooms are bright, and the new bathroom includes a tiled tub/shower with sliding glass doors. Downstairs, the basement offers good ceiling height and is ready for you to add your personal touches with a large laundry/utility area, a one-piece bathroom, a storage room (currently used as a drum room), and a spacious rec room. Covered parking, additional open space, easy access, and a low-maintenance yard. In close proximity to downtown Rossland, Red Mountain Resort, Redstone Golf Course, and an extensive network of hiking and biking trails, this property is perfect as a family starter home or the ultimate adventure headquarters for you and your crew. (id:36541)
Property Details
|
MLS® Number
|
10382537 |
|
Property Type
|
Single Family |
|
Neigbourhood
|
Rossland |
|
Amenities Near By
|
Golf Nearby, Recreation, Ski Area |
|
Community Features
|
Rentals Allowed |
|
Parking Space Total
|
2 |
Building
|
Bathroom Total
|
2 |
|
Bedrooms Total
|
3 |
|
Appliances
|
Refrigerator, Dryer, Range - Electric, Washer |
|
Architectural Style
|
Ranch |
|
Basement Type
|
Full |
|
Constructed Date
|
1938 |
|
Construction Style Attachment
|
Detached |
|
Exterior Finish
|
Metal, Stucco, Wood |
|
Flooring Type
|
Vinyl |
|
Half Bath Total
|
1 |
|
Heating Type
|
Forced Air, See Remarks |
|
Roof Material
|
Metal |
|
Roof Style
|
Unknown |
|
Stories Total
|
2 |
|
Size Interior
|
2018 Sqft |
|
Type
|
House |
|
Utility Water
|
Municipal Water |
Parking
|
Additional Parking
|
|
|
Carport
|
|
Land
|
Access Type
|
Easy Access |
|
Acreage
|
No |
|
Land Amenities
|
Golf Nearby, Recreation, Ski Area |
|
Sewer
|
Municipal Sewage System |
|
Size Irregular
|
0.07 |
|
Size Total
|
0.07 Ac|under 1 Acre |
|
Size Total Text
|
0.07 Ac|under 1 Acre |
Rooms
| Level |
Type |
Length |
Width |
Dimensions |
|
Basement |
1pc Bathroom |
|
|
4'4'' x 3'10'' |
|
Basement |
Recreation Room |
|
|
28'5'' x 11'10'' |
|
Basement |
Storage |
|
|
14'0'' x 11'0'' |
|
Basement |
Laundry Room |
|
|
20'5'' x 12'11'' |
|
Main Level |
Dining Room |
|
|
11'9'' x 9'8'' |
|
Main Level |
Kitchen |
|
|
12'11'' x 10'11'' |
|
Main Level |
Primary Bedroom |
|
|
11'9'' x 10'8'' |
|
Main Level |
4pc Bathroom |
|
|
9'4'' x 4'11'' |
|
Main Level |
Bedroom |
|
|
9'5'' x 8'5'' |
|
Main Level |
Bedroom |
|
|
9'5'' x 8'7'' |
|
Main Level |
Living Room |
|
|
17'3'' x 12'10'' |
https://www.realtor.ca/real-estate/29576750/1675-leroi-avenue-rossland-rossland