LOADING

160 3rd Avenue Christina Lake, British Columbia V0H 1E0

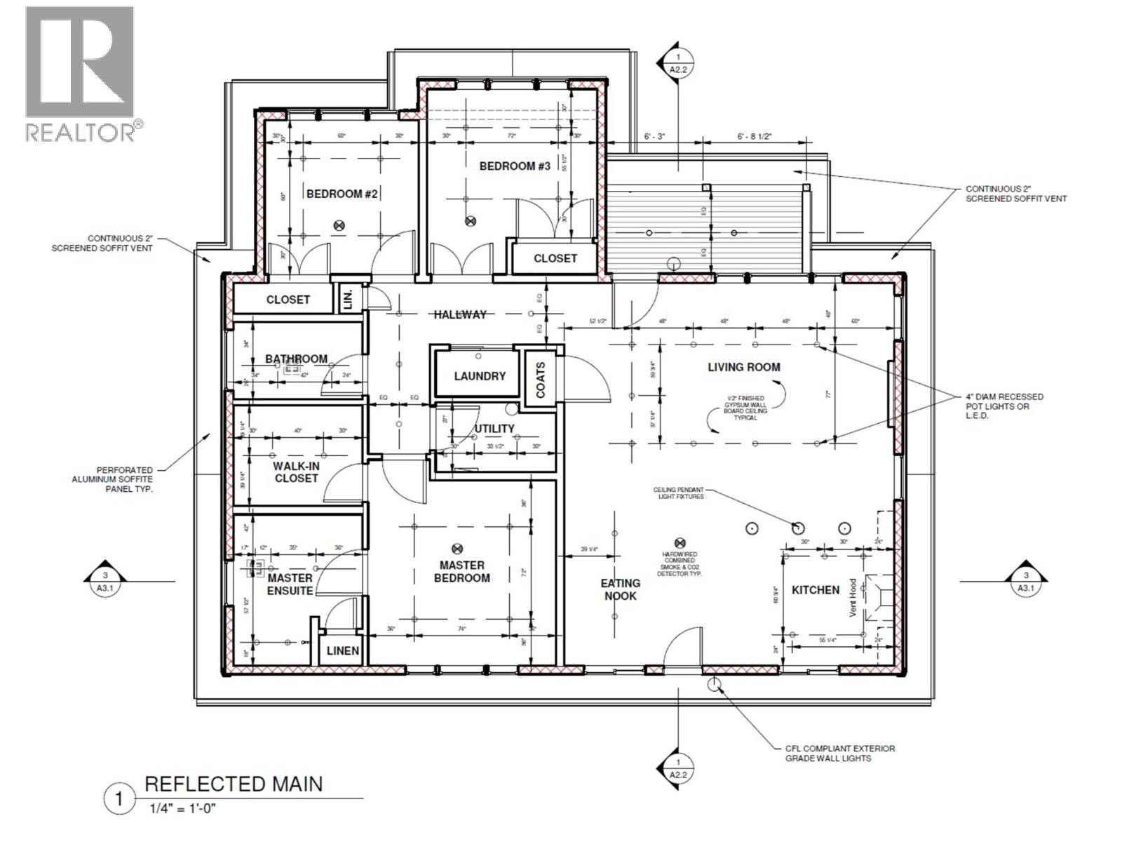
3 Bedroom 2 Bathroom 1408 sqft
Ranch Forced Air Level, Wooded Area

$679,000

Experience the perfect blend of contemporary style and peaceful outdoor living in this brand new rancher, only a five-minute stroll from the Christina Lake Golf Course & restaurant, and Cascade Par 3 Golf Course. This tranquil retreat, nestled at the end of a quiet dead-end street, offers an escape from the hustle and bustle, while being a mere ten-minute walk to the breathtaking Cascade Falls via the Trans-Canada Trail. No detail has been overlooked in this energy-efficient home, featuring a robust ICF foundation, a durable metal roof, low-maintenance composite siding, on-demand hot water and a high efficiency furnace, ensuring peace of mind and long-lasting quality. This property is perfect for year-round living, a seasonal retreat, or as a short-term rental revenue opportunity given its proximity to the golf course and Christina Lake. Call your local agent to view! (id:36541)

Property Details

MLS® Number 10375864
Property Type Single Family
Neigbourhood Christina Lake
Amenities Near By Golf Nearby
Features Level Lot, Private Setting

Building

Bathroom Total 2
Bedrooms Total 3
Appliances Hot Water Instant
Architectural Style Ranch
Constructed Date 2025
Construction Style Attachment Detached
Foundation Type Insulated Concrete Forms
Heating Fuel Electric
Heating Type Forced Air
Roof Material Metal
Roof Style Unknown
Stories Total 1
Size Interior 1408 Sqft
Type House
Utility Water Well

Land

Acreage No
Land Amenities Golf Nearby
Landscape Features Level, Wooded Area
Sewer Septic Tank
Size Irregular 0.28
Size Total 0.28 Ac|under 1 Acre
Size Total Text 0.28 Ac|under 1 Acre

Rooms

Level Type Dimensions
Main Level Utility Room 7'10'' x 4'6''
Main Level Dining Room 10' x 9'5''
Main Level Bedroom 10' x 10'
Main Level Bedroom 12' x 11'
Main Level Full Ensuite Bathroom 9'10'' x 8'4''
Main Level Full Bathroom 8'4'' x 5'
Main Level Primary Bedroom 12'2'' x 12'
Main Level Living Room 21'5'' x 14'5''
Main Level Kitchen 11'11'' x 10'

https://www.realtor.ca/real-estate/29356846/160-3rd-avenue-christina-lake-christina-lake

Interested?

Contact us for more information


Generating Captcha

Grand Forks Realty Ltd
272 Central Avenue
Grand Forks, British Columbia V0H 1H0

(250) 442-2711

Your Favourites

 

No Favourites Found