LOADING

15 Galena Avenue Logan Lake, British Columbia V0K 1W0

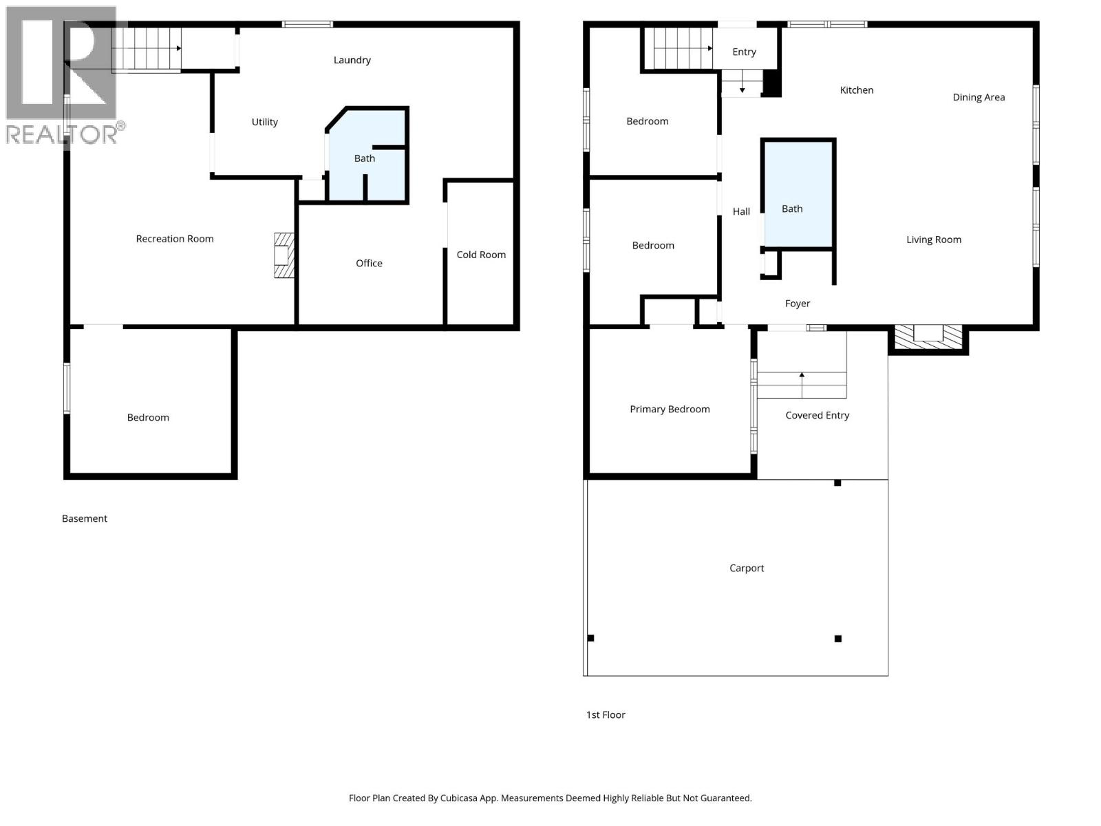
4 Bedroom 2 Bathroom 2064 sqft
Ranch Forced Air, See Remarks

$480,000

This 3+1 bedroom 2 bathroom single family home is located in a great location close to many amenities including Logan Lake Elementary, community centre, and shopping. The main floor has a bright and open living room, dining room, new island kitchen, 3 good sized bedrooms, and an updated 4 piece main bathroom. The downstairs has a large recroom, an additional bedroom, 3 piece bathroom, laundry, and office/utility room. The outside has good parking, single car carport and easy access to the fully fenced backyard. Other updates include new furnace in 2021 and new hot water tank is 2021. A must to view! (id:36541)

Property Details

MLS® Number 10383843
Property Type Single Family
Neigbourhood Logan Lake

Building

Bathroom Total 2
Bedrooms Total 4
Appliances Range, Refrigerator, Dishwasher, Washer & Dryer
Architectural Style Ranch
Basement Type Full
Constructed Date 1971
Construction Style Attachment Detached
Exterior Finish Vinyl Siding
Flooring Type Mixed Flooring
Heating Type Forced Air, See Remarks
Roof Material Asphalt Shingle
Roof Style Unknown
Stories Total 2
Size Interior 2064 Sqft
Type House
Utility Water Municipal Water

Parking

Carport

Land

Acreage No
Sewer Municipal Sewage System
Size Irregular 0.21
Size Total 0.21 Ac|under 1 Acre
Size Total Text 0.21 Ac|under 1 Acre

Rooms

Level Type Dimensions
Basement 3pc Bathroom Measurements not available
Basement Storage 7'10'' x 11'3''
Basement Other 5' x 11'
Basement Laundry Room 14' x 5'7''
Basement Den 9' x 11'4''
Basement Bedroom 11'4'' x 12'
Basement Recreation Room 19'7'' x 17'10''
Main Level 4pc Bathroom Measurements not available
Main Level Bedroom 9'9'' x 8'8''
Main Level Bedroom 7'10'' x 9'10''
Main Level Primary Bedroom 13'2'' x 11'7''
Main Level Kitchen 14' x 11'
Main Level Dining Room 7' x 11'
Main Level Living Room 12'2'' x 16'

https://www.realtor.ca/real-estate/29621504/15-galena-avenue-logan-lake-logan-lake

Interested?

Contact us for more information


Generating Captcha

RE/MAX Real Estate (Kamloops)
258 Seymour Street
Kamloops, British Columbia V2C 2E5

(250) 374-3331
(250) 828-9544
https://www.remaxkamloops.ca/

RE/MAX Real Estate (Kamloops)
258 Seymour Street
Kamloops, British Columbia V2C 2E5

(250) 374-3331
(250) 828-9544
https://www.remaxkamloops.ca/

Your Favourites

 

No Favourites Found