4 Bedroom
3 Bathroom
2586 sqft
Bungalow, Ranch
Fireplace
Forced Air, Heat Pump, See Remarks
Landscaped, Level, Underground Sprinkler
$599,000
A home that offers the space, flow, and flexibility you’ve been waiting for. This 4 bedroom, 3 bathroom home features a self-contained in-law suite in a walk-out basement and sits on an expansive 19,600 sq ft (nearly half-acre) lot, offering rare space and privacy in an established neighbourhood. The main floor includes three full-size bedrooms, main-floor laundry, and a bright, open living space anchored by a newly updated, spacious kitchen. The kitchen flows seamlessly through the dining and living areas and out to a covered deck, creating an easy transition between indoor and outdoor living. Natural light fills the home throughout, and a large mudroom adds excellent everyday functionality. The walk-out basement is ideal for extended family, guests, or in-laws and includes a functional kitchen, a generous primary bedroom, a new bathroom, a den, and ample storage. Outside, enjoy irrigated garden beds, a greenhouse, workshop/tool shed, outdoor patio, carport, and multiple storage options. The oversized fenced yard backs onto a greenbelt park, offering a peaceful setting and added privacy. Ideally located within walking distance to downtown, shopping, schools, parks, the library, transit, and community amenities, this property delivers space, convenience, and versatility in a location designed for everyday living. (id:36541)
Property Details
|
MLS® Number
|
10374940 |
|
Property Type
|
Single Family |
|
Neigbourhood
|
Creston |
|
Amenities Near By
|
Park, Recreation, Schools, Shopping |
|
Community Features
|
Family Oriented |
|
Features
|
Level Lot, Private Setting, Treed, Jacuzzi Bath-tub |
|
Parking Space Total
|
12 |
|
View Type
|
City View, Mountain View |
Building
|
Bathroom Total
|
3 |
|
Bedrooms Total
|
4 |
|
Appliances
|
Refrigerator, Dishwasher, Dryer, Range - Electric, Microwave, Washer |
|
Architectural Style
|
Bungalow, Ranch |
|
Basement Type
|
Full |
|
Constructed Date
|
1958 |
|
Construction Style Attachment
|
Detached |
|
Exterior Finish
|
Vinyl Siding |
|
Fireplace Fuel
|
Gas |
|
Fireplace Present
|
Yes |
|
Fireplace Total
|
1 |
|
Fireplace Type
|
Unknown |
|
Flooring Type
|
Carpeted, Concrete, Laminate, Linoleum |
|
Heating Type
|
Forced Air, Heat Pump, See Remarks |
|
Roof Material
|
Asphalt Shingle |
|
Roof Style
|
Unknown |
|
Stories Total
|
1 |
|
Size Interior
|
2586 Sqft |
|
Type
|
House |
|
Utility Water
|
Municipal Water |
Parking
Land
|
Acreage
|
No |
|
Land Amenities
|
Park, Recreation, Schools, Shopping |
|
Landscape Features
|
Landscaped, Level, Underground Sprinkler |
|
Sewer
|
Municipal Sewage System |
|
Size Irregular
|
0.45 |
|
Size Total
|
0.45 Ac|under 1 Acre |
|
Size Total Text
|
0.45 Ac|under 1 Acre |
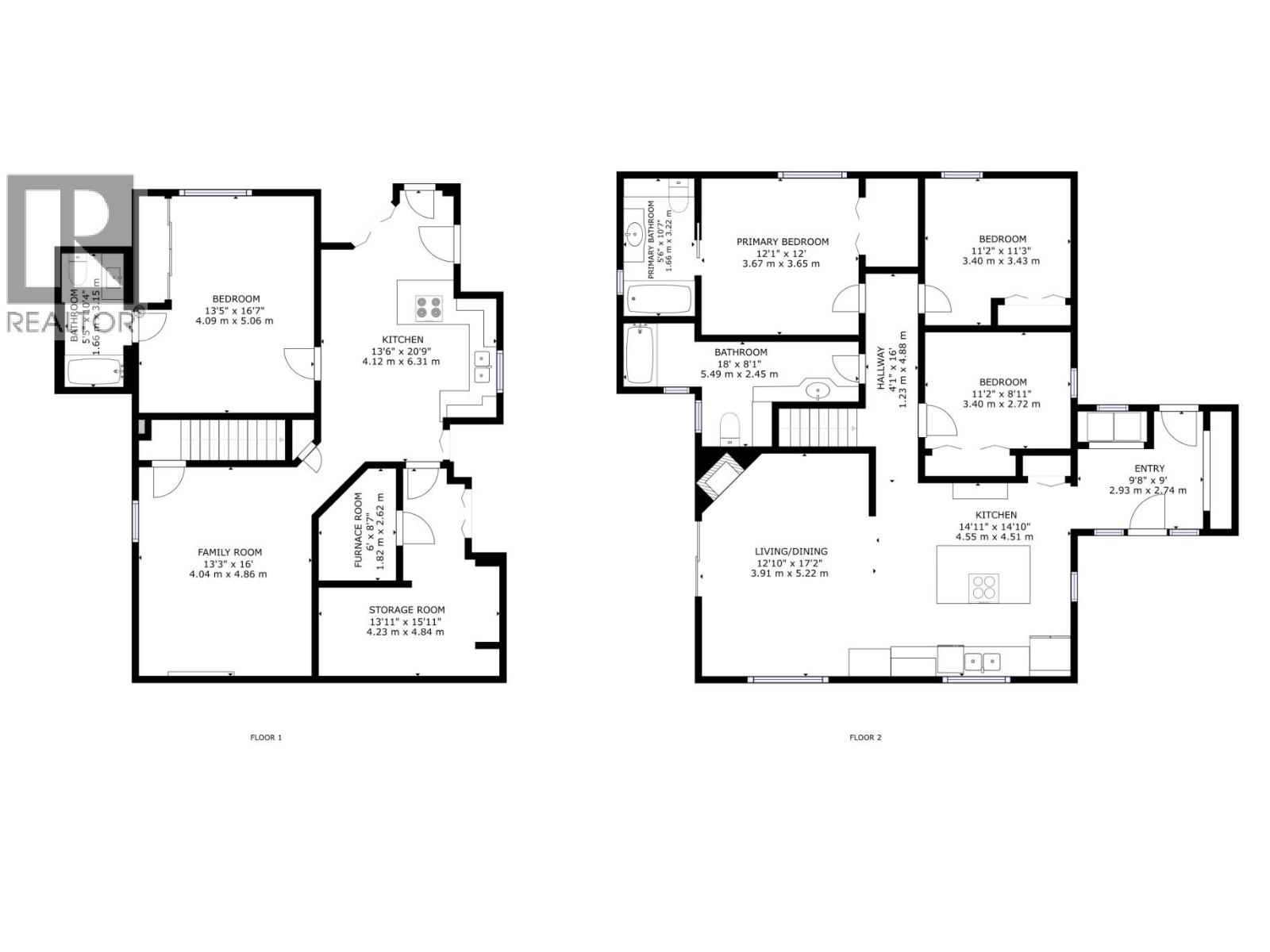
Rooms
| Level |
Type |
Length |
Width |
Dimensions |
|
Basement |
Full Bathroom |
|
|
Measurements not available |
|
Basement |
Storage |
|
|
13'11'' x 15'11'' |
|
Basement |
Kitchen |
|
|
20'9'' x 13'6'' |
|
Basement |
Bedroom |
|
|
13'5'' x 16'7'' |
|
Basement |
Utility Room |
|
|
6'6'' x 8'7'' |
|
Basement |
Family Room |
|
|
16'0'' x 13'3'' |
|
Main Level |
Full Ensuite Bathroom |
|
|
Measurements not available |
|
Main Level |
Full Bathroom |
|
|
Measurements not available |
|
Main Level |
Foyer |
|
|
9'0'' x 9'8'' |
|
Main Level |
Bedroom |
|
|
11'2'' x 8'11'' |
|
Main Level |
Bedroom |
|
|
11'2'' x 11'3'' |
|
Main Level |
Primary Bedroom |
|
|
12'1'' x 12' |
|
Main Level |
Living Room |
|
|
12'10'' x 17'2'' |
|
Main Level |
Kitchen |
|
|
14'11'' x 14'10'' |
https://www.realtor.ca/real-estate/29345280/1220-cedar-street-creston-creston