LOADING

1137 36th Avenue N Creston, British Columbia V0B 1G1

2 Bedroom 1 Bathroom 937 sqft
Fireplace Stove Acreage Landscaped, Wooded Area

$399,000

On nearly 10 acres in Erickson this home is located on a quiet no thru road that backs onto crown land. Private and peaceful with room to spread out, yet only minutes to Creston amenities The current home is a tidy older 2 bed/1 bath mobile with a bright main living area and a WETT-certified wood stove for comfortable heat. Outside is a multi-level deck to sit, relax, and enjoy the scenery. The land is terraced with several benches and the upper bench opens to wide valley and mountain views and makes a great future building spot or shop site. A private, licensed spring provides gravity-fed water and irrigation for the gardens, and there is a well drilled on the property as well that could be re-activated with a little bit of work done to it. Outside spaces include garden beds, flowers, natural stone accents, a fire pit, and plenty of parking with an easy turnaround. Out of town, quiet, and spacious, this acreage lets you live now while you plan what’s next. Call your realtor and book a viewing today. (id:36541)

Property Details

MLS® Number 10381833
Property Type Single Family
Neigbourhood Erickson
Amenities Near By Recreation, Schools, Shopping
Community Features Rural Setting
Features Private Setting, Treed, Central Island
View Type Mountain View, Valley View, View (panoramic)

Building

Bathroom Total 1
Bedrooms Total 2
Appliances Refrigerator, Oven - Electric, Hood Fan, Washer & Dryer
Constructed Date 1972
Exterior Finish Metal
Fire Protection Smoke Detector Only
Fireplace Present Yes
Fireplace Total 1
Fireplace Type Free Standing Metal
Flooring Type Laminate
Foundation Type Block
Heating Fuel Electric, Wood
Heating Type Stove
Roof Material Metal
Roof Style Unknown
Stories Total 1
Size Interior 937 Sqft
Type Manufactured Home
Utility Water Spring

Land

Access Type Easy Access
Acreage Yes
Current Use Other
Land Amenities Recreation, Schools, Shopping
Landscape Features Landscaped, Wooded Area
Sewer Septic Tank
Size Irregular 9.73
Size Total 9.73 Ac|5 - 10 Acres
Size Total Text 9.73 Ac|5 - 10 Acres

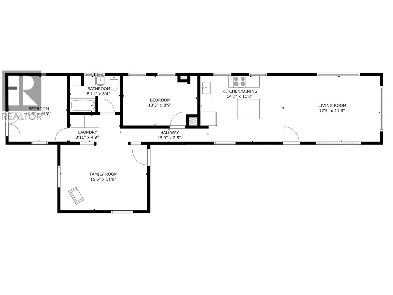
Rooms

Level Type Dimensions
Main Level Family Room 11'3'' x 15'7''
Main Level Primary Bedroom 10'7'' x 11'4''
Main Level Full Bathroom 9'0'' x 6'2''
Main Level Bedroom 13'6'' x 8'6''
Main Level Kitchen 15'6'' x 11'6''
Main Level Living Room 16'0'' x 11'6''

https://www.realtor.ca/real-estate/29548264/1137-36th-avenue-n-creston-erickson

Interested?

Contact us for more information


Generating Captcha

Real Broker B.c. Ltd
#1100 - 1631 Dickson Avenue
Kelowna, British Columbia V1Y 0B5

(888) 828-8447
www.onereal.com/

Your Favourites

 

No Favourites Found