5 Bedroom
4 Bathroom
4089 sqft
Ranch
Fireplace
Inground Pool, Outdoor Pool
Central Air Conditioning
Forced Air, See Remarks
Landscaped, Underground Sprinkler
$2,450,000
Welcome to this stunning Modern Mountainside walk out rancher that perfectly blends luxury and comfort. Perched above the valley and lake, the home captures breathtaking views through oversized windows and doors, filling every space with natural light. As you walk through the front door you are immediately drawn to the expansive view with 13 foot ceilings and the over sized covered front balcony, perfect for taking in the entire Lake and Valley Views. The chef’s kitchen boasts top-of-the-line appliances, while soaring ceilings create an airy elegance throughout the main level. The primary suite is a private retreat with a full spa-like ensuite, complete with a soaker tub, steam shower, and direct access to the deck. The lower level has 10 foot ceilings and is designed for entertaining with three large bedrooms, one which is also set up as a theatre room, two full baths (including pool access), wet bar, fireplace, Built In Sound System through out the home and a spacious games and living area. Expansive covered outdoor spaces and a 16x32 ft saltwater pool with auto-cover invite year-round enjoyment. Pre-wired for Hot tub. A 3-bay garage adds functionality, while the location offers unmatched convenience close to schools, trails, and shopping. This home is a rare opportunity to experience elevated living with comfort, privacy, and endless views. Measurements are approximate. (id:36541)
Property Details
|
MLS® Number
|
10376086 |
|
Property Type
|
Single Family |
|
Neigbourhood
|
Upper Mission |
|
Amenities Near By
|
Golf Nearby, Park, Recreation, Schools, Shopping |
|
Community Features
|
Family Oriented |
|
Features
|
Cul-de-sac, Central Island |
|
Parking Space Total
|
3 |
|
Pool Type
|
Inground Pool, Outdoor Pool |
|
Road Type
|
Cul De Sac |
|
View Type
|
City View, Lake View, Mountain View, Valley View, View (panoramic) |
Building
|
Bathroom Total
|
4 |
|
Bedrooms Total
|
5 |
|
Appliances
|
Refrigerator, Dishwasher, Dryer, Range - Gas, Microwave, Washer |
|
Architectural Style
|
Ranch |
|
Basement Type
|
Full |
|
Constructed Date
|
2017 |
|
Construction Style Attachment
|
Detached |
|
Cooling Type
|
Central Air Conditioning |
|
Exterior Finish
|
Stone, Stucco |
|
Fire Protection
|
Sprinkler System-fire, Security System, Smoke Detector Only |
|
Fireplace Fuel
|
Gas |
|
Fireplace Present
|
Yes |
|
Fireplace Total
|
2 |
|
Fireplace Type
|
Unknown |
|
Flooring Type
|
Carpeted, Hardwood, Tile |
|
Heating Type
|
Forced Air, See Remarks |
|
Roof Material
|
Asphalt Shingle |
|
Roof Style
|
Unknown |
|
Stories Total
|
2 |
|
Size Interior
|
4089 Sqft |
|
Type
|
House |
|
Utility Water
|
Municipal Water |
Parking
|
Additional Parking
|
|
|
Attached Garage
|
3 |
Land
|
Access Type
|
Easy Access |
|
Acreage
|
No |
|
Land Amenities
|
Golf Nearby, Park, Recreation, Schools, Shopping |
|
Landscape Features
|
Landscaped, Underground Sprinkler |
|
Sewer
|
Municipal Sewage System |
|
Size Frontage
|
75 Ft |
|
Size Irregular
|
0.33 |
|
Size Total
|
0.33 Ac|under 1 Acre |
|
Size Total Text
|
0.33 Ac|under 1 Acre |
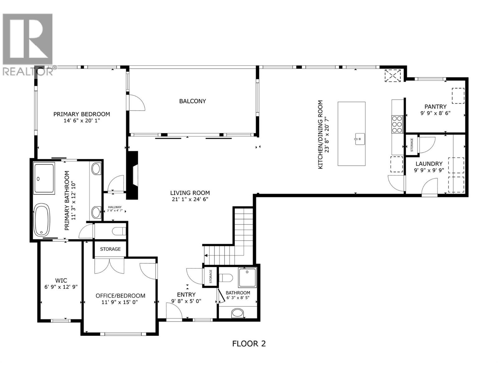
Rooms
| Level |
Type |
Length |
Width |
Dimensions |
|
Basement |
Utility Room |
|
|
10'4'' x 12'6'' |
|
Basement |
3pc Bathroom |
|
|
9'11'' x 15'7'' |
|
Basement |
Bedroom |
|
|
13'1'' x 16'0'' |
|
Basement |
3pc Bathroom |
|
|
5'7'' x 12'7'' |
|
Basement |
Bedroom |
|
|
13'0'' x 14'9'' |
|
Basement |
Bedroom |
|
|
17'8'' x 14'8'' |
|
Basement |
Family Room |
|
|
56'5'' x 26'5'' |
|
Main Level |
Pantry |
|
|
9'9'' x 9'6'' |
|
Main Level |
Laundry Room |
|
|
9'9'' x 9'8'' |
|
Main Level |
Foyer |
|
|
9'2'' x 5'0'' |
|
Main Level |
3pc Bathroom |
|
|
6'3'' x 8'5'' |
|
Main Level |
Bedroom |
|
|
11'9'' x 15'0'' |
|
Main Level |
Other |
|
|
6'8'' x 12'8'' |
|
Main Level |
5pc Ensuite Bath |
|
|
11'6'' x 13'0'' |
|
Main Level |
Primary Bedroom |
|
|
14'6'' x 20'1'' |
|
Main Level |
Kitchen |
|
|
23'8'' x 20'7'' |
|
Main Level |
Living Room |
|
|
24'6'' x 21'1'' |
https://www.realtor.ca/real-estate/29369841/1050-ledgeview-court-kelowna-upper-mission